View gallery
Img.1 Invisible Studio, Wolfson Tree Management Centre Mess Building, Tetbury, UK, 2016
Img.2 Invisible Studio, Wolfson Tree Management Centre Mess Building, Tetbury, UK, 2016
Img.3 Invisible Studio, Wolfson Tree Management Centre Mess Building, Tetbury, UK, 2016
Img.4 Invisible Studio, Wolfson Tree Management Centre Mess Building, Tetbury, UK, 2016
Img.5 Invisible Studio, Wolfson Tree Management Centre Mess Building, Tetbury, UK, 2016
Img.6 Invisible Studio, Wolfson Tree Management Centre Mess Building, Tetbury, UK, 2016
Img.7 Invisible Studio, Wolfson Tree Management Centre Mess Building, Tetbury, UK, 2016
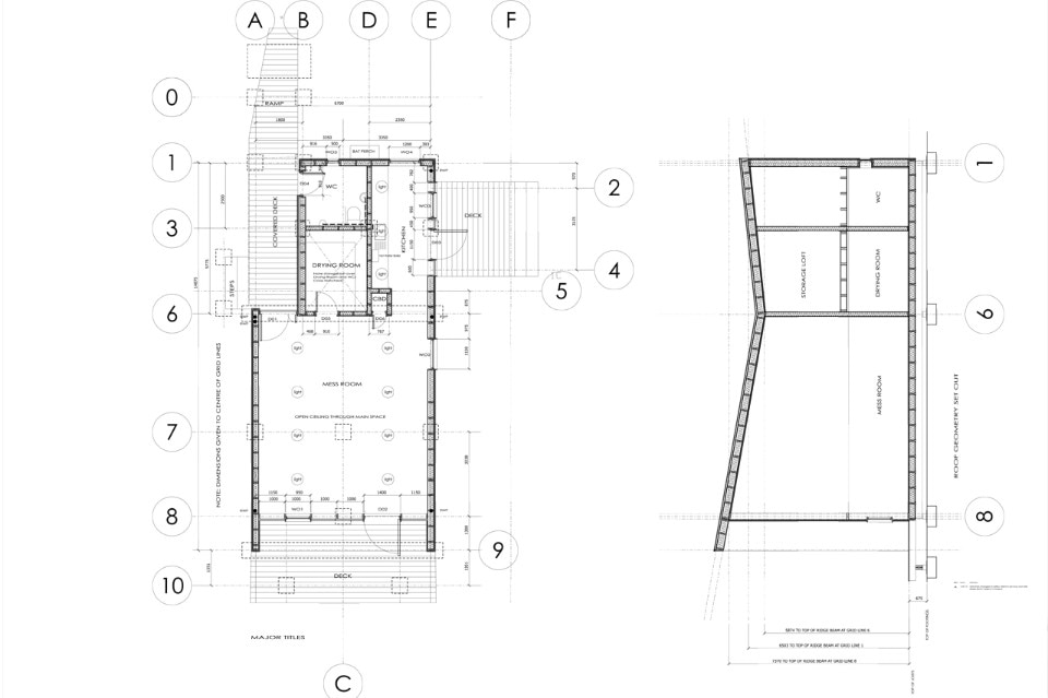
l(0)02 1 20 Plan.dgn
Invisible Studio, Wolfson Tree Management Centre Mess Building, building 1, plans
l(0)03 1 50 Sections.dgn
Invisible Studio, Wolfson Tree Management Centre Mess Building, building 1, sections
l(0)04 Elevations.dgn
Invisible Studio, Wolfson Tree Management Centre Mess Building, building 1, elevations
1405 AL025 SS ROOF PLAN 1_100.dgn
Invisible Studio, Wolfson Tree Management Centre Mess Building, building 2, plan
1405 AL045 SHED ELEVATIONS 1_100.dgn
Invisible Studio, Wolfson Tree Management Centre Mess Building, building 2, elevations
1405 AL031 SS TRUSS SECTION BB & CC 1_50.dgn
Invisible Studio, Wolfson Tree Management Centre Mess Building, building 2, sections
The first building – a tiny mess room – provides space for staff and volunteers to eat and take time out while also including storage and facilities to maintain kit. This little cabin-like building has an almost fairy-tale quality. Its location was determined by the surrounding trees beneath which it nestles, while its hyperbolic paraboloid roof has been shaped by the winter sun; it was designed so that during the winter months it would allow daylight into the yard behind. Inside it is simple with just two rooms and a loft storage space, all lined in plywood.
Wolfson Tree Management Centre Mess Building, Tetbury, UK
Program: mixed use
Architect: Invisible Studio
Engineering: Buro Happold
Completion: 2017
