View gallery
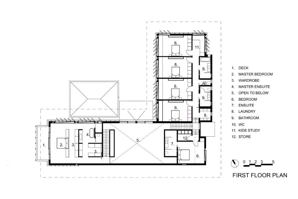
A curved circulation path leads visitors from the front gate to the front door while taking in harbour bridge views. Careful siting maximises solar, garden and view access to all rooms, yet minimises the apparent bulk and scale of the house as viewed from the street. The large eaves, first floor cantilevers and continuous banks of casement shutters shield the building from direct sun and rain. Cooling breezes are easily directed through adjustable louvres and wind scoops. A continuous deck connects the interior sunroom, living and family room spaces with the exterior large sunny garden.
Palm House, Sydney
Architect: Casey Brown Architecture
Design architect: Rob Brown
Project architect: Tom Monahan
Engineering: Ken Murtagh, Murtagh Bond
Contractor: Mick Carroll, Bellevarde Constructions
Landscape: Volker Klemm
Completion: 2016
