View gallery
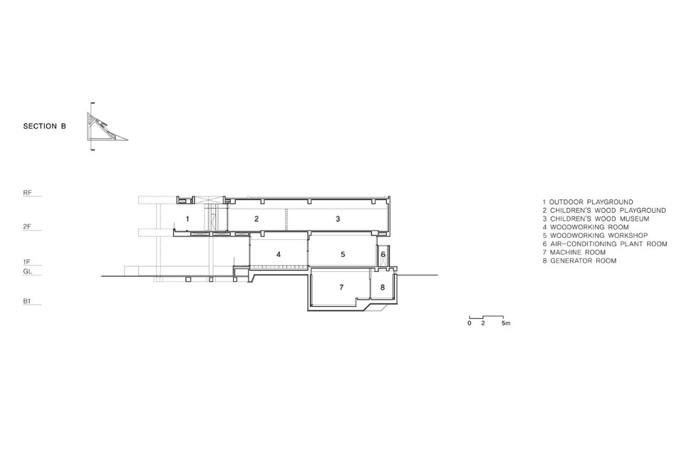
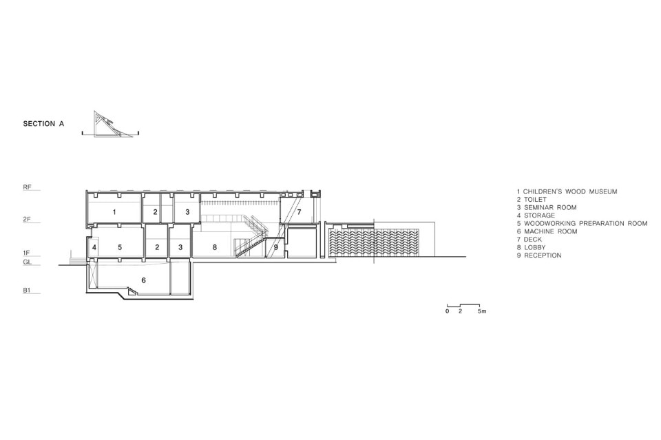
This project was designed as an exhibition space where to sense wood and trees – their smell, vision, touch, and hearing. The design strategy is the symbolization of the arboretum in the Incheon Grand Park. The Ambience Wall – an interactive wood screen – creates a real-time ambience through parameters, reflecting human activities and micro-weather around this building. This can make the interaction between people and architecture, and communication between inner and outer space.
Mokyeonri, Incheon, South Korea
Program: museum
Architect: softarchitecturelab – Eunju Han
Area: 1,173 sqm
Completion: 2017
