View gallery
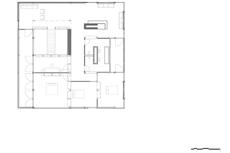
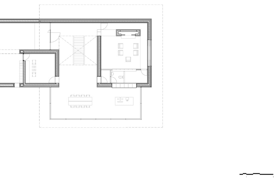
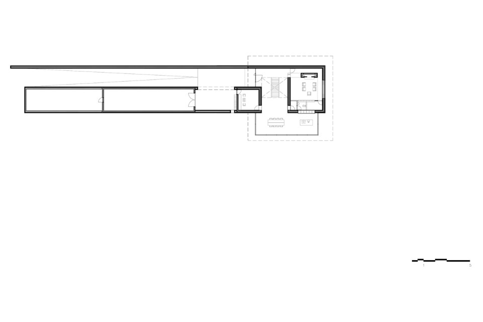
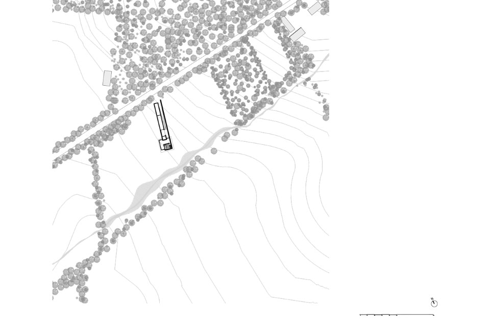
Amsterdam-based studio Ard de Vries Architecten finds it very important that the materials – if possible – come from naturally grown, raw materials. Prior to the design, the family bought some sandstones of an old, demolished house. This had to be the basis for their home. The barns near Dinkelland are made from untreated oak, a material that can be found abundantly in this area.
Valkenberg Estate, Twente, The Netherlands
Program: single family house
Architect: Ard de Vries Architecten
Area: 500 sqm
Completion: 2016
