Galleria
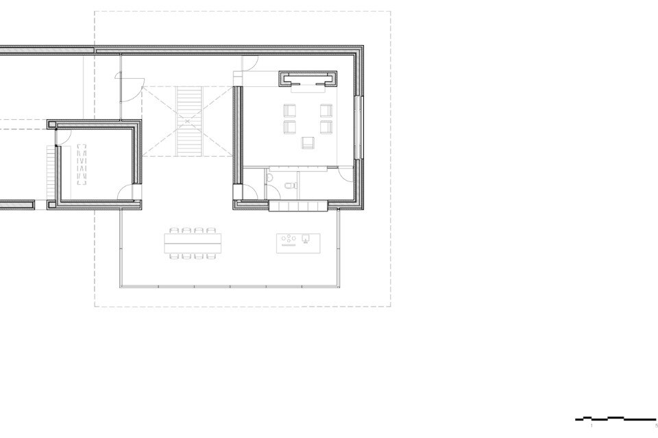
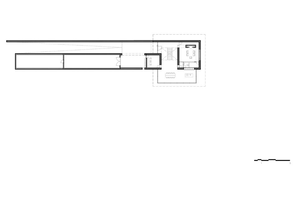
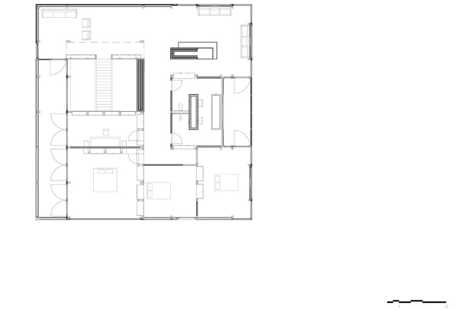
Lo studio con sede ad Amsterdam ha utilizzato – quando possibile – materiali provenienti da materie prime naturali. Prima della costruzione la famiglia ha comprato delle pietre di arenaria da una vecchia casa demolita. Queste dovevano essere la base per la loro casa nuova. È stato utilizzato inoltre legno di quercia non trattato, un materiale che può essere trovato in abbondanza nella zona.
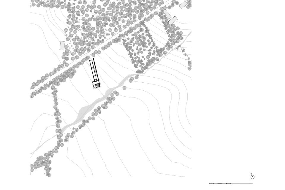
Tenuta Valkenberg, Twente, Olanda
Tipologia: casa unifamiliare
Architetto: Ard de Vries Architecten
Superficie: 500 mq
Completamento: 2016
