View gallery
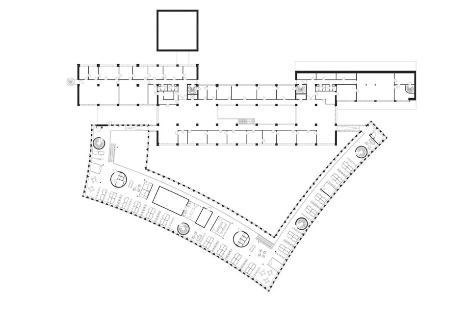
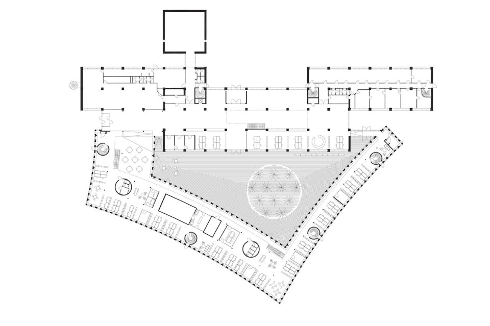
The new building opens up towards the town hall and creates a common space for its employees in an informal and open structure – a democratic and non-hierarchical plan. The addition submits itself to the existing town hall, but still has a specific expression – a glass building that meets the outdoors and is inviting in an informal manner. The concept for the proposal is a dialog between the brutality and heaviness of the original building and lightness and delicacy of the new building. The project is not creating two competing buildings, but two parts of the whole that works together and supplement each other.
Tønder Townhall, Denmark
Program: office building
Architect: Sleth
Engineer: Søren Jensen Engineering Consultants
Area: 3.000 sqm
Completion: 2016
