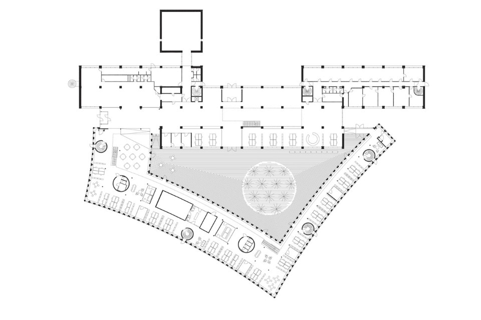
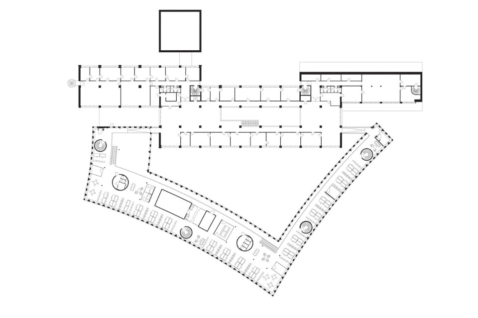
Galleria
Il nuovo edificio si apre verso quello esistente e crea uno spazio comune per i dipendenti. La struttura è informale è aperta, caratterizzata da una pianta libera e non gerarchica. L’innesto è pensato in relazione al municipio esistente ma ha una sua espressione specifica, un edificio di vetro che si relaziona con l’esterno e invità all’informalità. La proposta mette in dialogo la pesantezza e la brutalità dell’edificio originale con la leggerezza e la delicatezza della nuova struttura. Non si creano due edifici concorrenti ma due parti diverse che funzionano insieme e si completano.
Municipio di Tønder, Danimarca
Tipologia: municipio
Architetto: Sleth
Strutture: Søren Jensen Engineering Consultants A/S
Superficie: 3.000 mq
Completamento: 2016
