View gallery
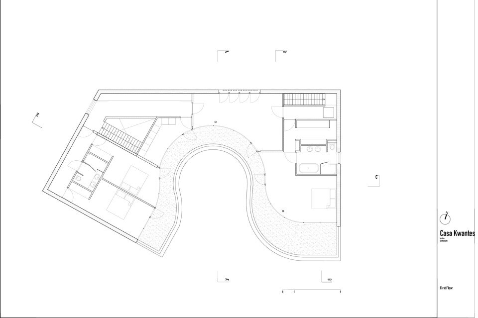
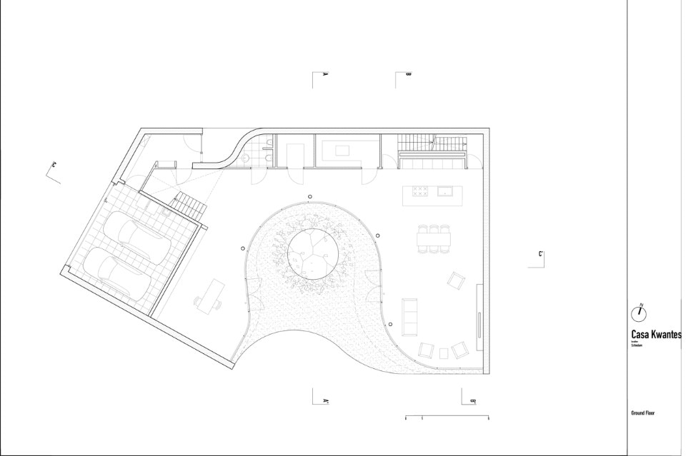
In entering through a curved indent in an otherwise flat and mysterious facade with Celosia brickwork detail, visitors are led into the entrance hall. Stepping into the property, it suddenly opens into the well-lit living spaces of its curved and fluid interior. This continuous wall also serves as an entrance to the garage and staircase.
Casa Kwantes, Rotterdam
Program: single family house
Architect: MVRDV
Design team: Winy Maas, Jacob van Rijs, Nathalie de Vries, Frans de Witte, Herman Gaarman, Arjen Ketting and Brygida Zawadzka
Engineer: IMd
Installations: Techniplan
Contractor: Villabouw Mattone
Facade: IFS Building System
Interiors: DK Projects
Area: 480 sqm
Completion: 2016
