View gallery
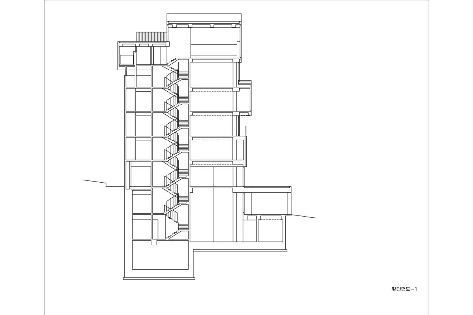
For that purpose, a reduction of the common area, including the elevator, the staircase, and a public bathroom has been proposed and the maximization of the rental area will enable sufficient operation of all the building’s required functions. Although the building seems to by vertically stacked floor-by-floor when it is seen at its care, its overall volume appears to be the combination of fragmented space.
View gallery
Cheongdam, March Rabbit, Seoul, Korea
Program: mixed-use
Architect: L’Eau design – Kim Dong-jin
Design team: Lee Sanghak , Ju Ikhyeon, Jung Donghui, Yoon Jihye, Kwon Jungyeol, Kim Minji
Structural engineering: SDM Structural Engineering
Mechanical and electrical engineer: Hana Consulting Engineers
Contractor: Jehyo
Area: 989.87 sqm
Completion: 2016
