View gallery
Ledged thematic areas create open spaces for flexible use in the summer season (open exhibitions, lectures, workshops, kid’s activities). Open and closed spaces generate the model of urban organism, united by a common surface – a smart floor. Smart floor creates new algorithms, promoting a thematic flexibility and variability, due to a permanent allocation of the connection points on the entire plane. Light navigation systems, engineering systems, electrical, lighting and heating are implanted into a single plate.
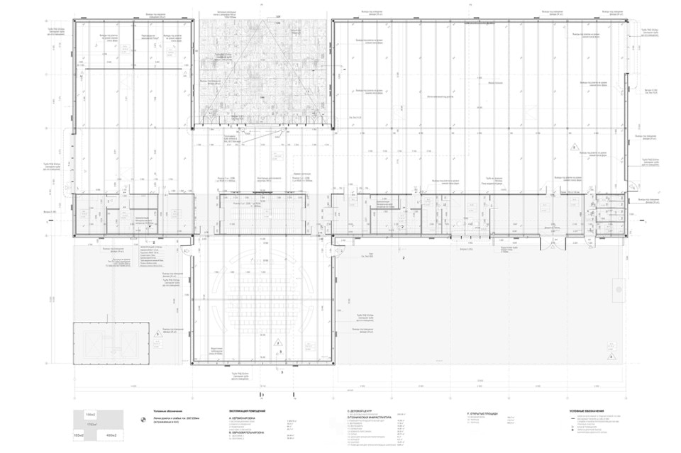
Pavilion DIT at VDNH, Moscow
Program: pavilion
Architect: Architecture bureau Wall
Area: 1,600 sqm
Completion: 2016
