View gallery
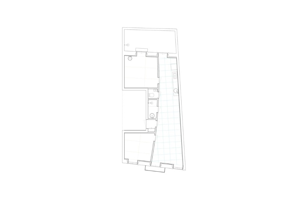
The long main space serves as living but also as dining and kitchen area; it is a living gallery rather than a living room. Its curved wall is punctuated by hand-painted doors in different shades of blue, hanging detached from the floor like a set of monochrome paintings. There is a carefully calibrated clash between the lightness of the curve and the rigidity of its elevation.
View gallery
Graça Apartment, Lisbon
Program: apartment
Architects: Fala Atelier
Design team: Filipe Magalhães, Ana Luisa Soares, Ahmed Belkhodja, Clara Pailler, Mariana Silva, Lera Samovich
Completion: 2016
