results
No results
Please enter a long search term
White Edge on Brick
The Korean architectural practice YOAP designed a small mixed-use building with five separate rental housing unit, a two-story owner’s house and a retail space on the ground floor.
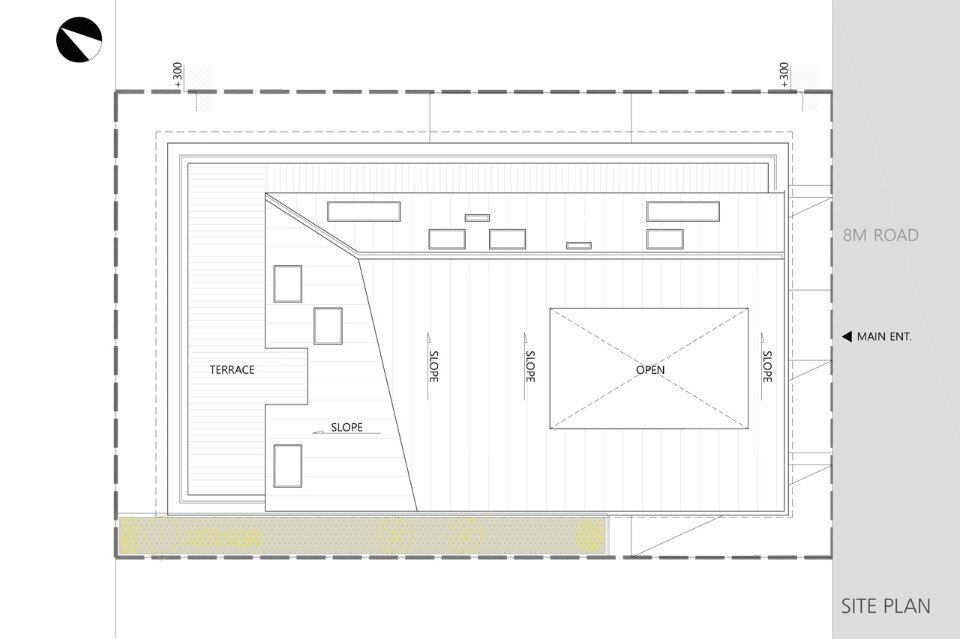
White Edge on Brick is a small mixed-use building with five separate rental housing unit, a two-story owner’s house and a retail space on the ground floor. The site for this project is located in a little old planned town, which is a part of the verge of the capital city, Seoul. As the continuous growth of the city, the boundary of Seoul is changing and the town is being redeveloped.
YOAP, White Edge on Brick, Seoul, 2016
The client of the project dreamed to have his two-story house for various indoor and outdoor activities like a penthouse above the rental spaces. The architects suggested dissimilar colors, textures and materials of the facade to reflect two different purpose – rental or own space – on the street view. Furthermore, the combination of disparate shapes – classical brick box for economical rental residences, and trendy white trapezoid for distinctive luxurious house – consequentially maximizes their own program properties.
YOAP, White Edge on Brick, Seoul, 2016
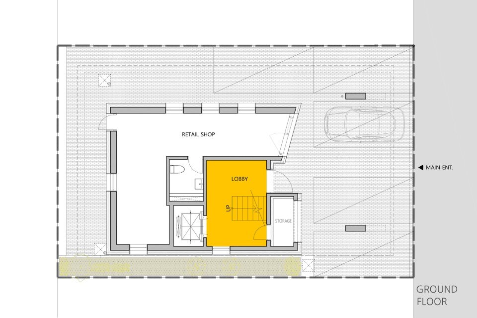
The pilotis and retail space are designed by considering active connection and expandability towards other retail places on the street. The main gate and interior space of the ground floor are colored with vivid colors – red and lime, which helps the building to deliver its attractiveness to its neighbors.
YOAP, White Edge on Brick, Seoul, 2016
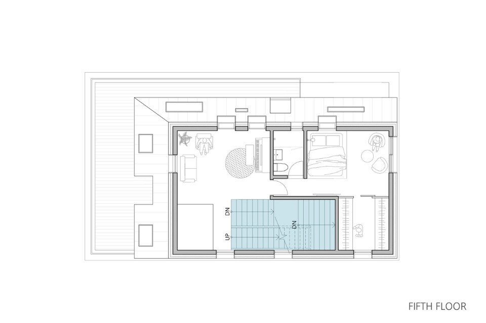
The yellow staircase meets up with diverse colors according to the floor. People would not only recognize which floor they are on by the colors but also find unaccustomed scene in common space – lobby, hallway, and stairs. This unfamiliar experience allows core spaces to be more unexpected and enjoyable.
YOAP, White Edge on Brick, Seoul, 2016
Every rental housing has its own veranda which is the only exterior space in the unit. The red frame of the space highlights its uniqueness from both inside and outside of the building. Additionally, all window steel frames emphasize overall windows and facade clearly and strengthen insulation and waterproof function.
View gallery
SHARE
PIN IT
SHARE
PIN IT
SHARE
PIN IT
SHARE
PIN IT
SHARE
PIN IT
SHARE
PIN IT
SHARE
PIN IT
SHARE
PIN IT
SHARE
PIN IT
SHARE
PIN IT
YOAP, White Edge on Brick, Seoul, 2016
SHARE
PIN IT
PLAN & DIAGRAM _2000px
YOAP, White Edge on Brick, Seoul, 2016
SHARE
PIN IT
PLAN & DIAGRAM _2000px
YOAP, White Edge on Brick, Seoul, 2016
SHARE
PIN IT
PLAN & DIAGRAM _2000px
YOAP, White Edge on Brick, Seoul, 2016
SHARE
PIN IT
PLAN & DIAGRAM _2000px
YOAP, White Edge on Brick, Seoul, 2016
SHARE
PIN IT
PLAN & DIAGRAM _2000px
YOAP, White Edge on Brick, Seoul, 2016
SHARE
PIN IT
PLAN & DIAGRAM _2000px
YOAP, White Edge on Brick, Seoul, 2016
SHARE
PIN IT
PLAN & DIAGRAM _2000px
YOAP, White Edge on Brick, elevations
SHARE
PIN IT
PLAN & DIAGRAM _2000px
YOAP, White Edge on Brick, elevations
SHARE
PIN IT
PLAN & DIAGRAM _2000px
YOAP, White Edge on Brick, diagrams
SHARE
PIN IT
White Edge on Brick
Program: Housing + Retail building Architects: designband YOAP architects Project team: Hyun Bo Shin, In Keun Ryoo, Doran Kim, Seohyun Lee Area: 408.25 sqm Completion: 2016