White Edge on Brick

Il giovane studio coreano YOAP ha progettato un piccolo edificio ad uso misto con cinque appartamenti destinati all’affitto, la casa su due piani del proprietario e un negozio al piano terra.

YOAP, White Edge on Brick, Seoul, 2016
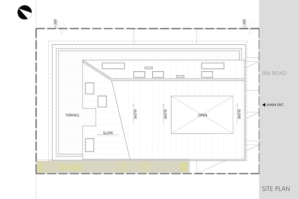
White Edge on Brick è un piccolo edificio ad uso misto con cinque appartamenti destinati all’affitto, la casa del proprietario su due piani e un negozio al piano terra. Il progetto si trova in una piccola città storica, al confine con la capitale, Seoul. Essendo la città in continua crescita, i confini di Seoul stanno cambiando rapidamente e anche la cittadina si sta sviluppando.
YOAP, White Edge on Brick, Seoul, 2016
YOAP, White Edge on Brick, Seoul, 2016
Il cliente voleva che la sua casa, su due piani per varie attività indoor e outdoor, fosse come un attico sopra gli appartamenti da noleggiare. Gli architetti hanno suggerito differenti colori, texture e materiali, in modo da far emergere le due diverse finalità – affitto e la proprietà – dall’esterno. Inoltre la combinazione di forme diverse – una classica scatola in mattoni per le economiche residenze in affitto, e un trapezoide per la casa lussuosa e appariscente – enfatizza ulteriormente la diversità del programma.
YOAP, White Edge on Brick, Seoul, 2016
YOAP, White Edge on Brick, Seoul, 2016
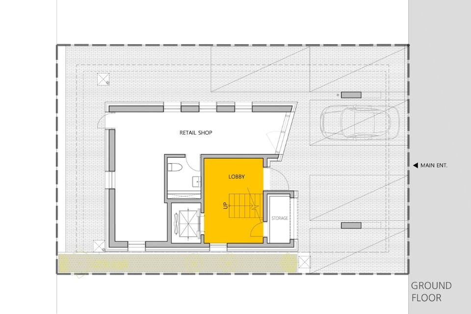
Pilotis e spazi commerciali sono progettati considerando la connessione con altri luoghi di commercio al dettaglio sulla stessa strada. L’ingresso principale e lo spazio interno del piano terra sono colorati con colori vivaci – rosso e lime, che aiutano ad attrarre il vicinato.
YOAP, White Edge on Brick, Seoul, 2016
YOAP, White Edge on Brick, Seoul, 2016
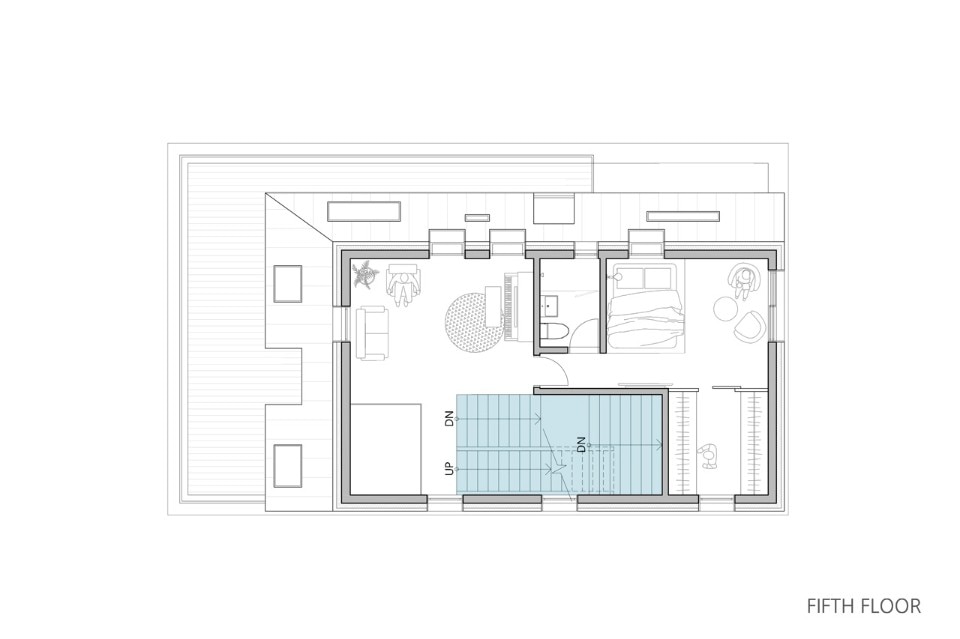
La scale gialle si combinano con colori diversi a seconda del piano. I piani sono riconoscibili non solo dai colori differenti, ma anche dalla presenza di scene inconsuete per spazi comuni – hall, corridoi, e scale. Questa esperienza non abituale rende gli spazi comuni e di distribuzione inaspettati e piacevoli.
YOAP, White Edge on Brick, Seoul, 2016
YOAP, White Edge on Brick, Seoul, 2016
Ogni alloggio in affitto ha la sua veranda che è l’unico spazio esterno delle unità abitative. Una cornice rossa sottolinea l’unicità di questi spazi sia all’interno che all'esterno dell’edificio. 

White Edge on Brick, Seoul
Programma:
edificio a uso misto
Architettura: designband YOAP architects
Team di progetto: Hyun Bo Shin, In Keun Ryoo, Doran Kim, Seohyun Lee
Area: 408,25 mq
Completamento: 2016

Ultimi articoli di Architettura

Altri articoli di Domus

China Germany India Mexico, Central America and Caribbean Sri Lanka Korea icon-camera close icon-comments icon-down-sm icon-download icon-facebook icon-heart icon-heart icon-next-sm icon-next icon-pinterest icon-play icon-plus icon-prev-sm icon-prev Search icon-twitter icon-views icon-instagram