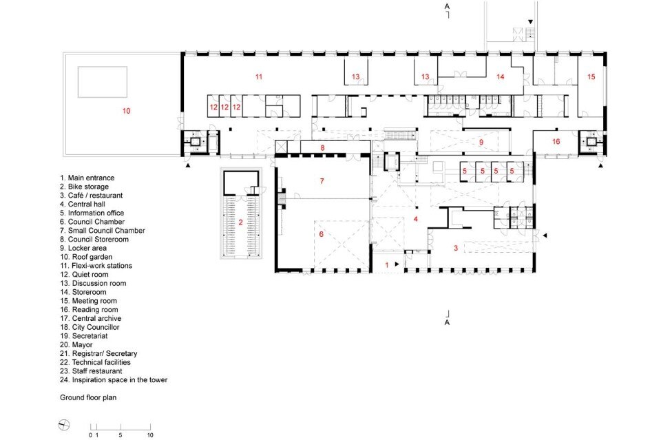
The lively, brick facade is opened up by large areas of glass across the entire expanse of the building. The inviting entrance is also predominantly glass. As soon as visitors enter the building the lay-out is immediately clear. The building comprises a simple division into two sections: a public area and a working building. These two sections converge in a light, lively atrium.
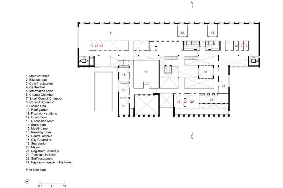
This is where the council, the civil servants and the public meet each other. It is the key place in the municipality where knowledge can be exchanged and new alliances can be formed. The public area on the ground floor includes, among other things, the Civil Affairs Department, the Council Chamber and a restaurant, with the offices of the Mayor and City Councillors on the floor above. The back office is situated on the other side of the atrium, above the sunken car park. The back office works according to the New Way of Working concept and has a wide variety of workplaces. The separation between areas that are open to the public and the working areas is designed to be self-explanatory, without any tangible restricted access and everyone knows where they should be.
Natural materials such as wood and stone have been applied in the interior. This is combined with fresh green accents creating visual harmony within the building. Optimal acoustics, an abundance of natural light and a playful layout make the town hall an attractive, inspiring place to be, where both visitors and staff feel at home.
The creation of a durable town hall was a key concept right from the outset. The municipality sought to achieve BREEAM Excellent certification. Integrating this aspiration into the design from the start resulted in a highly- durable town hall without the need for overly-complex interventions. For example, the building’s compact form and high degree of flexibility contribute to its excellent level of sustainability. It is also extremely energy efficient due to the effective generation of heating and cooling in combination with a low-temperature heating system and the optimum use of natural light (the high positioning of windows and automatic sun blinds to prevent excessive warmth). And the large roof surface is used to generate electricity by means of PV cells.
View gallery
111111_Drechterland_Plattegronden_20150617_EN
111111_Drechterland_Plattegronden_20150617_EN
111111_Drechterland_Plattegronden_20150617_EN
111111_Drechterland_Doorsnede_EN_20160314
Drechterland Town Hall, Hoogkarspel, The Netherlands
Program: town hall
Architect: De Zwarte Hond
Team: Henk Stadens, Jurjen van der Meer, Christiaan ten Have, Hui Jun Chang, Martijn Korendijk, Freddy Siekmans
Client: Municipality of Drechterland
Client design and contractor: ABC NOVA, Bouwgroep Dijkstra Draisma
Furniture and carpeting: M+R interior architecture
Area: 4,100 sqm
Completion: 2015
