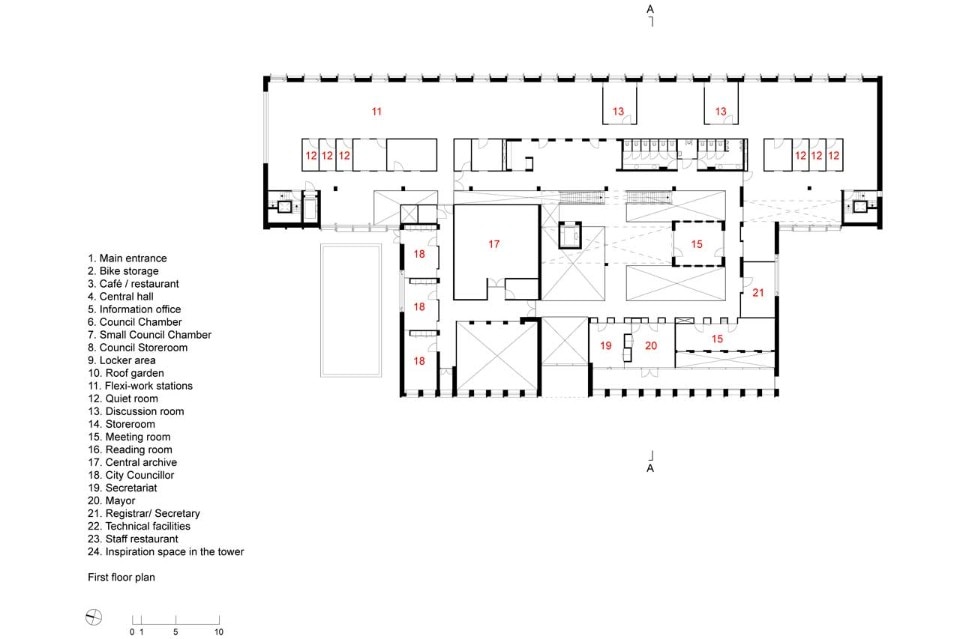
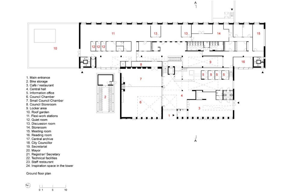
La facciata in mattoni è interrotta da ampie vetrate che si estendono per tutta la lunghezza del volume. Il vetro è anche l’elemento principale dell’ingresso, dal quale è immediatamente comprensibile il layout. La struttura è semplicemente divisa in due sezioni: una zona pubblica e una con gli uffici, che convergono nell’atrio luminoso, il cuore del municipio, dove si incontrano e si confrontano il Consiglio, i dipendenti pubblici e gli abitanti.
L’area pubblica al piano terra comprende, tra le altre cose, il Dipartimento Affari Civili, la Camera del Consiglio e di un ristorante, con gli uffici del sindaco e degli assessori al piano di sopra. L’ufficio si trova sul lato opposto dell’atrio, sopra il parcheggio interrato. La separazione tra le aree aperte al pubblico e le aree di lavoro è progettata per essere auto-esplicativa, senza alcun accesso limitato tangibile.
Materiali naturali come il legno e la pietra sono i protagonisti degli interni. Questo si combina con accenti verdi che creano armonia visiva. L’attenzione all’acustica e alla luce naturale e un layout giocoso rendono il municipio un luogo stimolante, in cui i visitatori e il personale si sentono a casa.
La creazione di un municipio che potesse avere vita lunga è stato uno dei concetti chiave del progetto, con cui il comune ha cercato di raggiungere la certificazione BREEAM Excellent. Tenendo conto di questa intenzione fin dalle prime fasi del progetto si è costruito un edificio che non richiede grossi interventi di manutenzione. Ad esempio, la forma compatta e l’alto grado di flessibilità contribuiscono alla sua sostenibilità. Un sistema di riscaldamento a bassa temperatura e l’uso ottimale della luce naturale (con finestre alte e tende da sole automatiche per evitare il calore eccessivo) lo rendono anche molto efficiente. Infine, la superficie del tetto viene utilizzata per generare elettricità mediante celle fotovoltaiche.
Galleria
111111_Drechterland_Plattegronden_20150617_EN
111111_Drechterland_Plattegronden_20150617_EN
111111_Drechterland_Plattegronden_20150617_EN
111111_Drechterland_Doorsnede_EN_20160314
Municipio di Drechterland, Hoogkarspel, Drechterland, Paesi Bassi
Tipologia: municipio
Architetti: De Zwarte Hond
Team: Henk Stadens, Jurjen van der Meer, Christiaan ten Have, Hui Jun Chang, Martijn Korendijk, Freddy Siekmans
Committente: Municipality of Drechterland
Impresa: ABC NOVA, Bouwgroep Dijkstra Draisma
Mobili e tapezzeria: M+R interior architecture
Area: 4.100 mq
Completamento: 2015
