The clients are two sisters whose hobbies are travel and woodwork, who wants a house that can be also a playground.
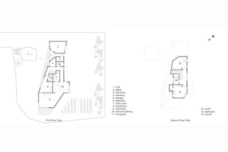
B.U.S Architecture left intact the great rock existing on the ground. Putting the house at the center of the site and creating a circulation inside the house enabled sequence from the rock through the forest at the backyard to the living room where one can see the Northern Han River. In this experience, one comes to encounter three yards with different characters and can enjoy so long and variegated landscape.
View gallery
B.U.S Architecture, Rock House, Yangpyung_eup, Yangpyung_gun, Gyunggi_do, Republic of Korea
B.U.S Architecture, Rock House, Yangpyung_eup, Yangpyung_gun, Gyunggi_do, Republic of Korea
B.U.S Architecture, Rock House, Yangpyung_eup, Yangpyung_gun, Gyunggi_do, Republic of Korea
B.U.S Architecture, Rock House, Yangpyung_eup, Yangpyung_gun, Gyunggi_do, Republic of Korea
B.U.S Architecture, Rock House, Yangpyung_eup, Yangpyung_gun, Gyunggi_do, Republic of Korea
B.U.S Architecture, Rock House, Yangpyung_eup, Yangpyung_gun, Gyunggi_do, Republic of Korea
B.U.S Architecture, Rock House, Yangpyung_eup, Yangpyung_gun, Gyunggi_do, Republic of Korea
B.U.S Architecture, Rock House, Yangpyung_eup, Yangpyung_gun, Gyunggi_do, Republic of Korea
B.U.S Architecture, Rock House, Yangpyung_eup, Yangpyung_gun, Gyunggi_do, Republic of Korea
B.U.S Architecture, Rock House, Yangpyung_eup, Yangpyung_gun, Gyunggi_do, Republic of Korea
B.U.S Architecture, Rock House, Yangpyung_eup, Yangpyung_gun, Gyunggi_do, Republic of Korea
B.U.S Architecture, Rock House, Yangpyung_eup, Yangpyung_gun, Gyunggi_do, Republic of Korea
B.U.S Architecture, Rock House, Yangpyung_eup, Yangpyung_gun, Gyunggi_do, Republic of Korea
B.U.S Architecture, Rock House, Yangpyung_eup, Yangpyung_gun, Gyunggi_do, Republic of Korea
B.U.S Architecture, Rock House, Yangpyung_eup, Yangpyung_gun, Gyunggi_do, Republic of Korea
Model
B.U.S Architecture, Rock House, Yangpyung_eup, Yangpyung_gun, Gyunggi_do, Republic of Korea. Plans
Model
B.U.S Architecture, Rock House, Yangpyung_eup, Yangpyung_gun, Gyunggi_do, Republic of Korea. Section
Model
B.U.S Architecture, Rock House, Yangpyung_eup, Yangpyung_gun, Gyunggi_do, Republic of Korea. Section
Rock House, Yangpyung_eup, Yangpyung_gun, Gyunggi_do, Republic of Korea
Program: single-family house
Architects: B.U.S Architecture
Design: Byungyup Lee, Hyemi Park, Jihyun Park, Seonghak Cho
Construction: Hausfactory
Area: 104.81 sqm
Completion: 2015
