I clienti sono due sorelle appassionate di viaggi e lavorazione del legno, che desideravano una casa che fosse anche un parco giochi.
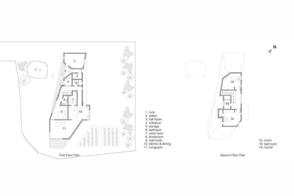
B.U.S Architecture ha lasciato intatta la grande roccia, costruendo la casa al centro del lotto e creando un sistema di circolazione interno che affaccia in sequenza sulla roccia, sul bosco retrostante e sul fiume, visibile dal soggiorno: tre ambienti con caratteri diversi da cui godere di un paesaggio variegato.
Galleria
B.U.S Architecture, Rock House, Yangpyung_eup, Yangpyung_gun, Gyunggi_do, Repubblica di Corea
B.U.S Architecture, Rock House, Yangpyung_eup, Yangpyung_gun, Gyunggi_do, Repubblica di Corea
B.U.S Architecture, Rock House, Yangpyung_eup, Yangpyung_gun, Gyunggi_do, Repubblica di Corea
B.U.S Architecture, Rock House, Yangpyung_eup, Yangpyung_gun, Gyunggi_do, Repubblica di Corea
B.U.S Architecture, Rock House, Yangpyung_eup, Yangpyung_gun, Gyunggi_do, Repubblica di Corea
B.U.S Architecture, Rock House, Yangpyung_eup, Yangpyung_gun, Gyunggi_do, Repubblica di Corea
B.U.S Architecture, Rock House, Yangpyung_eup, Yangpyung_gun, Gyunggi_do, Repubblica di Corea
B.U.S Architecture, Rock House, Yangpyung_eup, Yangpyung_gun, Gyunggi_do, Repubblica di Corea
B.U.S Architecture, Rock House, Yangpyung_eup, Yangpyung_gun, Gyunggi_do, Repubblica di Corea
B.U.S Architecture, Rock House, Yangpyung_eup, Yangpyung_gun, Gyunggi_do, Repubblica di Corea
B.U.S Architecture, Rock House, Yangpyung_eup, Yangpyung_gun, Gyunggi_do, Repubblica di Corea
B.U.S Architecture, Rock House, Yangpyung_eup, Yangpyung_gun, Gyunggi_do, Repubblica di Corea
B.U.S Architecture, Rock House, Yangpyung_eup, Yangpyung_gun, Gyunggi_do, Repubblica di Corea
B.U.S Architecture, Rock House, Yangpyung_eup, Yangpyung_gun, Gyunggi_do, Repubblica di Corea
B.U.S Architecture, Rock House, Yangpyung_eup, Yangpyung_gun, Gyunggi_do, Repubblica di Corea
Model
B.U.S Architecture, Rock House, Yangpyung_eup, Yangpyung_gun, Gyunggi_do, Repubblica di Corea. Piante
Model
B.U.S Architecture, Rock House, Yangpyung_eup, Yangpyung_gun, Gyunggi_do, Repubblica di Corea. Sezione
Model
B.U.S Architecture, Rock House, Yangpyung_eup, Yangpyung_gun, Gyunggi_do, Repubblica di Corea. Sezione
Rock House, Yangpyung_eup, Yangpyung_gun, Gyunggi_do, Repubblica di Corea
Tipologia: casa unifamiliare
Architetti: B.U.S Architecture
Design: Byungyup Lee, Hyemi Park, Jihyun Park, Seonghak Cho
Impresa: Hausfactory
Area: 104,81 mq
Completamento: 2015
