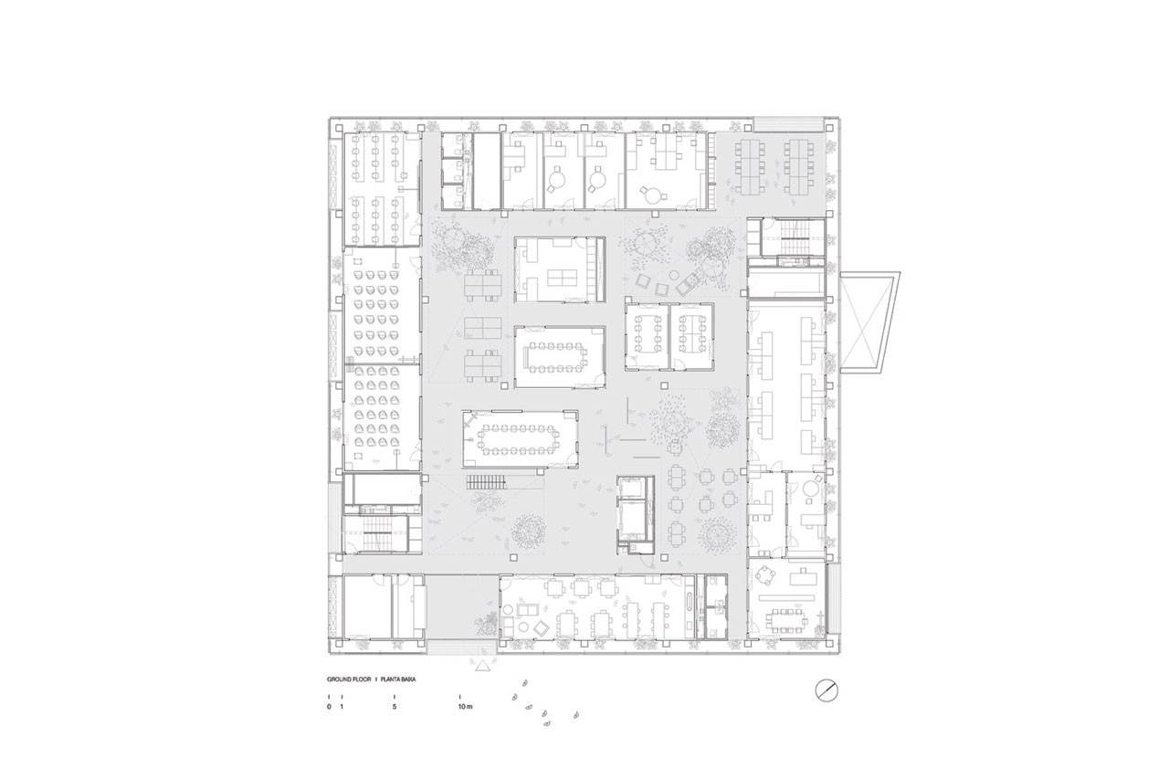
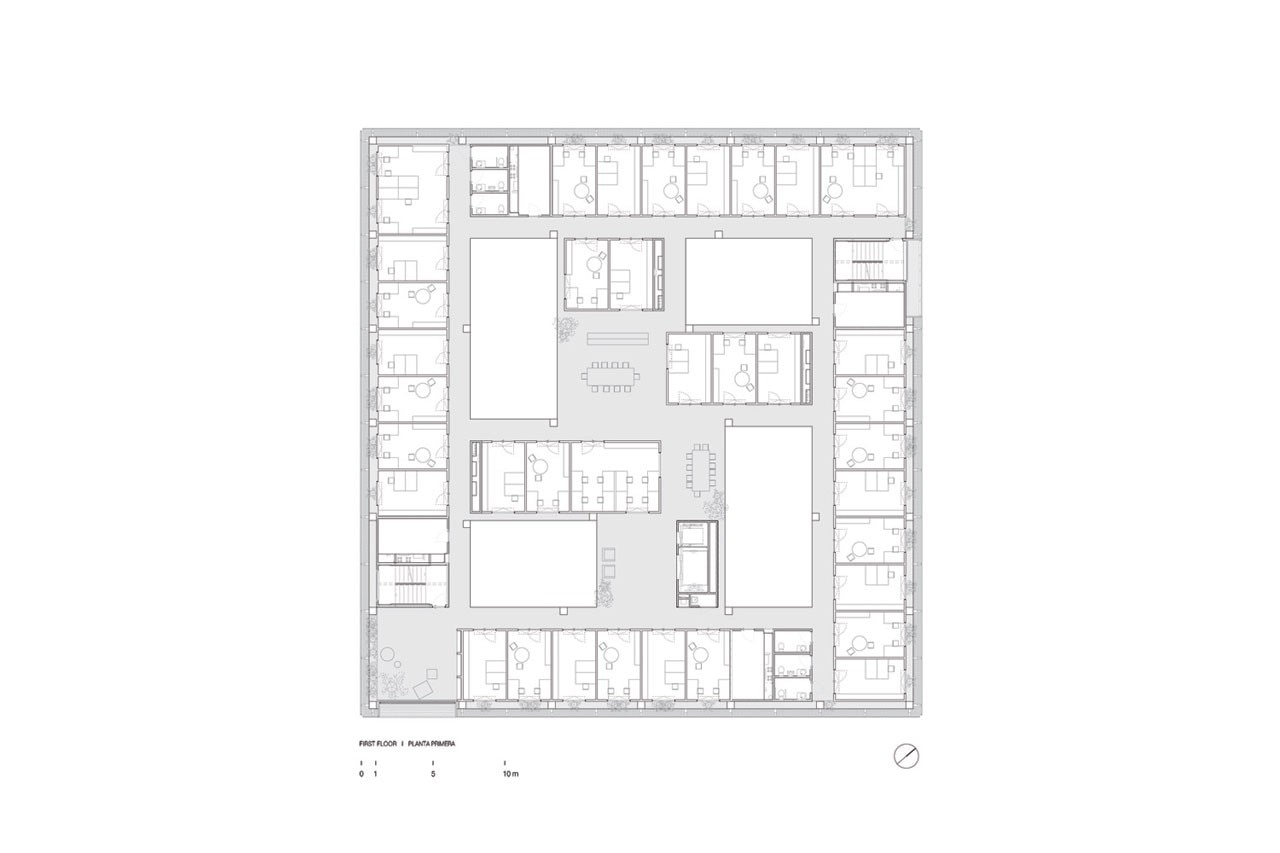
The building, an isolated volume of five floors of 40x40 sqm and two basements, contains the following program: on the ground floor the hall, bar, classrooms, meeting rooms and the administration area; the next 3 floors hold the offices and laboratories; on the roof there are vegetable patches together with the resting areas. The semi basement holds the parking and the engine rooms while the basement contains the warehouses and other laboratories.
Both offices and laboratories are spaces with a lot of internal load and therefore tend to be hot. The building has been designed to take profit from this internal situation in winter while it tends to dissipate it in summer. It has been thought as an adaptable and flexible infrastructure able to suffer changes of use, developing several simultaneous strategies that work complementarily.
The concrete structure is wrapped and protected by a low cost exterior bioclimatic skin. By installing a greenhouse industrialized system that opens and closes its mechanisms automatically, the solar gain and ventilation are regulated. This way, it is possible to raise the interior temperature naturally and guarantee a base of comfort in the circulation spaces as well as in the in-between spaces.
In the middle of the building four patios, with stairs that connect the different levels at certain points, guarantee light and ventilation in all workspaces reducing the consumption of artificial lighting. These patios, as well as the inbetween spaces and the perimeter gallery, contain several plant species that allow to improve the comfort through the adjustment of the humidity gradient.
View gallery
ICTA-ICP research centre, Cerdanyola del Vallès, Barcelona
Program: research centre
Architects: Harquitectes (David Lorente, Josep Ricart, Xavier Ros, Roger Tudó), Dataae (Claudi Aguiló, Albert Domingo)
Team: Montse Fornés, Bernat Colomer, Xavier Mallorquí, Toni Jiménez, Ileana Manea, Josep Garriga, Anne Hinz
Collaborators: Societat Orgànica (Environmental Consultants); Oriol Vidal (Engineering); Coque Claret y Dani Calatayud (Consultant Architects); BOMA (Structural Design); Eulàlia Aran (Budget), Marta Bordas (Accessibility); Cati Montserrat (Agronomy Consultant); UTE NDa + RCe (Quantity Surveyor); Carlos Rocha (Model); Play-Time (Rendering)
Client: Universitat Autònoma de Barcelona (UAB)
Area: 9,404.65 sqm
Completion: 2014
