The panoramic view of Chao Phraya River and Putthai Sawan Temple cannot be seen from the brick walls courtyard. It can only be experienced passing through Sala Restaurant towards the riverfront deck. At this location, you can see another facade of Sala, white walls of gable houses, the arrangement of step decks and terraces along the waterfront.
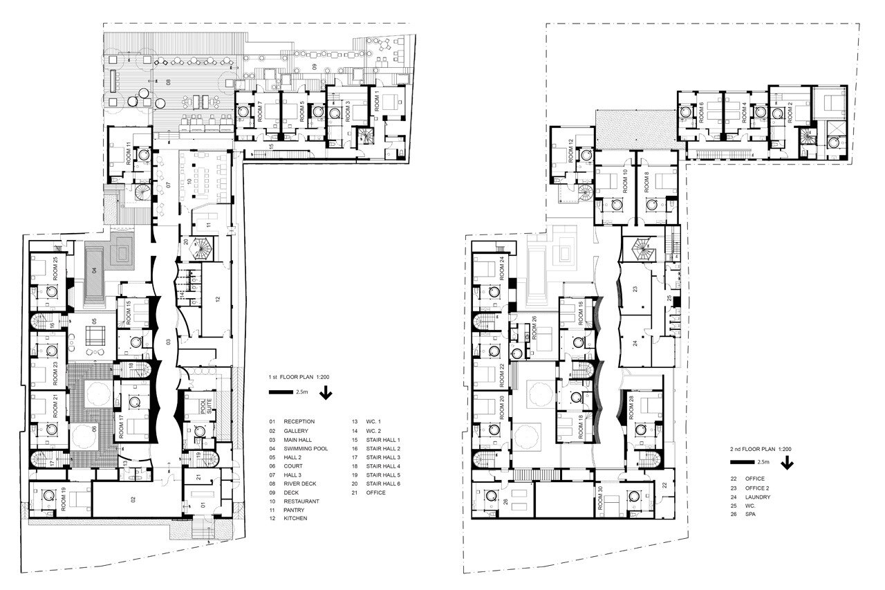
Sala layout is a compound of twelve private residences, proportionately packed within the limited area of L-shape land, leaving the focal points of the project to be the outdoor spaces.
They exhibit the local craftsmanship of brickworks, juxtaposed with the simplicity and neatness of the white walls and a solution to the problem of annual flooding, inspired by Chand Baori Step Well in Rajasthan, India.
The pattern of steps, designed to be flooded, can be explained as an architectural element of Ayutthaya architecture. The architects have borrowed a reduced size of a corner of the Phutthai Sawan Stupa, scaled and redesigned it to frame various objects at Sala. This includes the interior and the exterior walls, the vertical and the horizontal planes, the furniture and the pillow cases.
The bell-shape granite lamps are the main features at Sala Restaurant. They are custom-made by a local factory. The structural pattern of the hangers is based on the grid system, but the design looks dynamic because of the precise positions of the weights that change the pattern of electric cables, from a straight to a zig-zag pattern. The image of a tiger leaping forwards, meaning strength in Thai’s belief, is engraved upon the head of the wooden bed. The section of a Thai ornament called luk-mahuad is redesigned as parts of bathroom counters and beds.
View gallery
Sala Ayutthaya Hotel, Ayutthaya, Thailand
Program: hotel
Architects: Onion (Siriyot Chaiamnuay & Arisara Chaktranon)
Area: 3,500 sqm
Completion: 2014
