La vista panoramica del fiume Chao Phraya e sul tempio di Putthai Sawan non può essere colta dal cortile, circondato dai muri di mattoni, ma solo raggiungendo il ristorante e procedendo verso il ponte sul fiume. In questa posizione, si vede un’altra facciata dell’hotel, con volumi a timpano dalle pareti bianche, gradoni e terrazze sul fiume.
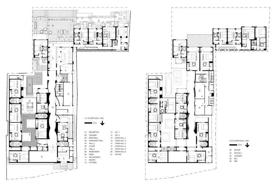
Il layout comprende dodici residenze private disposte all’interno del lotto a forma di L, lasciando gli spazi esterni nei punti focali. In questi spazi si fa uso dei laterizi prodotti artigianalmente in loco, giustapposti alla semplicità delle pareti bianche, e di una soluzione al problema delle inondazioni annuali ispirata ai gradoni del pozzo Chand Baori in Rajasthan, India.
Il pattern dei gradini, destinati a essere allagati, può essere spiegato come un elemento preso a prestito dall’architettura di Ayutthaya. Gli architetti hanno riprodotto in dimensione ridotta un angolo del Phutthai Sawan, scalato e ridisegnato per adattarsi alle pareti interne ed esterne, ai piani orizzontali e verticali, ai mobili e ai tessuti.
La forma delle lampade di granito caratterizza la sala del ristorante. Realizzate da un’impresa locale, sono installate secondo un sistema a griglia che appare tuttavia dinamico grazie alle posizioni precise dei pesi che cambiano il pattern di cavi elettrici, da lineare a zig-zag. L’immagine di una tigre che salta in avanti, cioè la forza secondo la tradizione tailandese, è incisa sulla testata dei letti in legno, mentre la sezione di un tipico ornamento chiamato luk-mahuad è riprodotta sui ripiati dei bagni e sui letti.
Galleria
Sala Ayutthaya Hotel, Ayutthaya, Tailandia
Tipologia: hotel
Architetti: Onion (Siriyot Chaiamnuay & Arisara Chaktranon)
Area: 3.500 mq
Completamento: 2014
