Domus Digital Archive PRO on sale

House CM

This house was built by Bruno Vanbesien on an open lot in between two houses dating from the second half of the twentieth century. It is the result of the successful cooperation between the architect and the owner, an architect assistant himself.

House CM
Although the facade seems to suggest that behind its afromosia panelling only two storeys are hidden, in reality this is a far bigger house.
The big window in front, evenly balanced between the two ground floor and the first floor, complicates an unambiguous reading of the layout even more. From the start the design-team opted for a discrete facade, harmoniously linked with the neighbouring houses. This can further be seen in the camouflaging of both the front door and the garage. The placing of the front window proves to be more than an aesthetically pleasing solution. The large window placed on a pedestal brings the rooms on both ground and first floor a combination of much welcomed privacy and luxurious reclusion from the street.
House CM
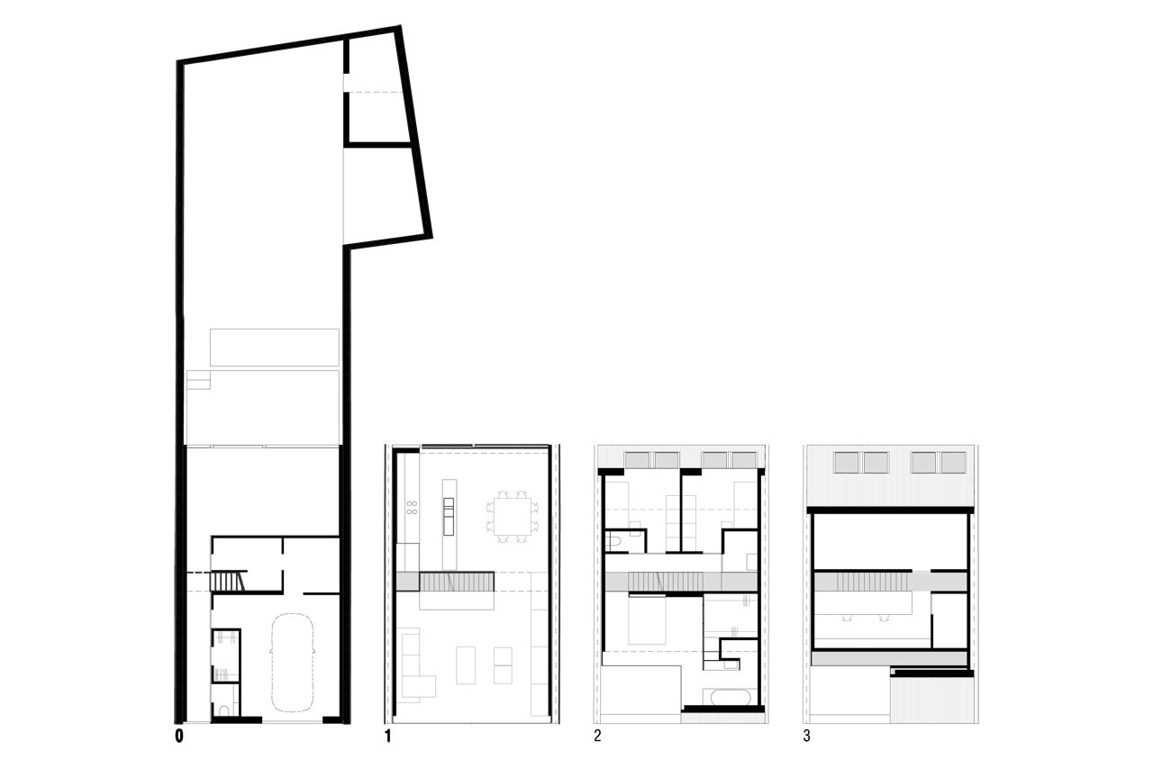
Bruno Vanbesien Architects, House CM, Zellik, Belgium
The wooden panelling in tropical hardwood decorates the front facade but also covers the roof and the back of the house thus creating harmony and unity in the use of materials. The same discreetness and reservedness is not to be found in the back of the house. There the architect has chosen to pursue a maximum of transparency and flexibility and to give free expression to the personality of the owner.
Bruno Vanbesien Architects, House CM, Zellik, Belgium
Bruno Vanbesien Architects, House CM, Zellik, Belgium
The large windows on the ground but also on the first floor can be opened up wide so that the transition between in/out becomes blurred. This playful treatment of in- and outside is best witnessed in the use of the terrace next to the bedroom on the second floor. There the glass door can slide away to make room for the bed which can be rolled outside to sleep under the stars. The natural stone floor composed of basalt tiles in the different rooms as well as the terraces outside maximise this effect even more.
Bruno Vanbesien Architects, House CM, Zellik, Belgium
Bruno Vanbesien Architects, House CM, Zellik, Belgium
Inside one cannot but notice the metal staircase. Its construction is kept light to bring a maximum of light from the light shaft directly above the staircase to the storeys below. The aluminium frame of the light shaft is hid between plaster so that only the glass remains visible making it a very decorative element in the house. All interior elements (kitchen, bathroom, lighting, furniture) were designed with the architecture in mind. The strict alignment of the furniture, the inventiveness of the design and the use of selected materials further accentuate the architecture and gives it extra luster.


House CM, Zellik, Belgium
Program: single-family house
Architetcs: Bruno Vanbesien Architects (Bruno Vanbesien & Christophe Meersman)
Project architect: Christophe Meersman
Area: 220 sqm

Latest on Architecture

Latest on Domus

China Germany India Mexico, Central America and Caribbean Sri Lanka Korea icon-camera close icon-comments icon-down-sm icon-download icon-facebook icon-heart icon-heart icon-next-sm icon-next icon-pinterest icon-play icon-plus icon-prev-sm icon-prev Search icon-twitter icon-views icon-instagram