Risultati
Nessun elemento trovato
Ricerca troppo corta
House CM
Questa residenza, progettata da Bruno Vanbesien su un lotto aperto tra due case della seconda metà del XX secolo, è il risultato della proficua collaborazione tra l’architetto e il proprietario, lui stesso assistente architetto.
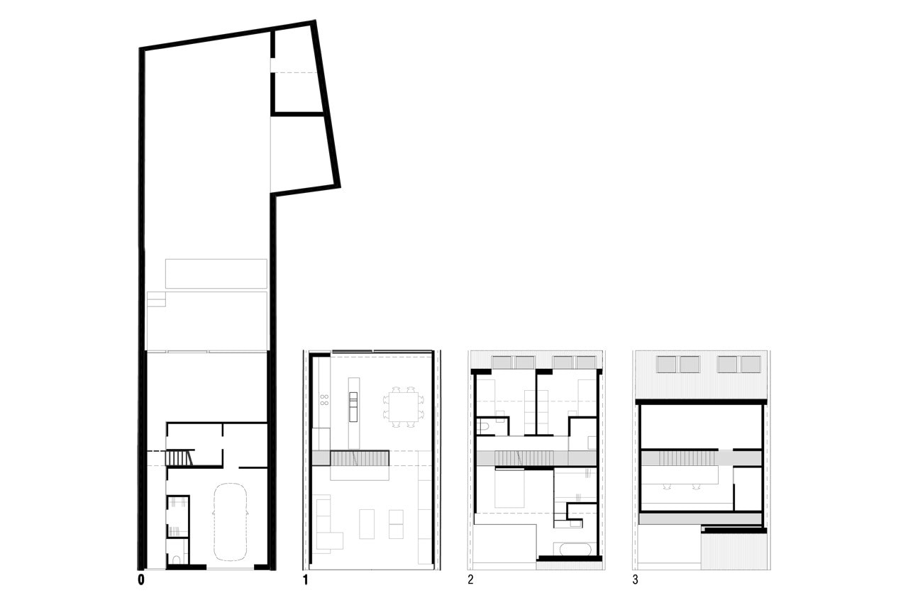
Sebbene la facciata sembri suggerire che dietro i suoi pannelli di afrormosia si sviluppino solo due piani, in realtà si tratta di una casa molto più grande.
La grande finestra frontale, equamente bilanciata tra il piano terra e il primo piano, complica ancora di più la lettura del layout. Fin dall’inizio il team di progetto ha optato per una facciata discreta, armoniosamente collegata con le case vicine. Questo principio ha determinato la mimetizzazione sia della porta anteriore che del garage. In un prospetto così pulito l’inserzione della finestra risulta essere più di una soluzione esteticamente gradevole. La grande finestra illumina gli spazi del piano terra e del primo piano senza privarli della privacy e della chiusura rispetto alla strada.
Bruno Vanbesien Architects, House CM, Zellik, Belgio
Il rivestimento in legno duro tropicale caratterizza la facciata principale, ma anche la copertura e il prospetto posteriore, creando armonia e unità nonostante il retro non presenti gli stessi carattere di discrezione. Qui l’architetto ha scelto di cercare la massima trasparenza e flessibilità e dare libera espressione alla personalità del proprietario.
Bruno Vanbesien Architects, House CM, Zellik, Belgio
Le grandi finestre al piano terra e al primo piano possono essere completamente aperte in modo da sfocare il limite tra interno ed esterno. Questo trattamento del rapporto dentro-fuori è testimoniato anche dalla terrazza accanto alla camera da letto al secondo piano, dove la porta può scorrere per fare spazio al letto, che può essere trasportato fuori per dormire sotto le stelle. Il pavimento in pietra naturale, realizzato con piastrelle di basalto, massimizza questo effetto.
Bruno Vanbesien Architects, House CM, Zellik, Belgio
All’interno la protagonista dello spazio è la scala metallica. La sua struttura leggera consente di portare la luce del lucernario sino ai piani inferiori. Il telaio in alluminio è nascosto dall’intonaco, in modo che rimanga visibile solo il vetro, rendendo la scala un elemento decorativo. Tutti gli elementi interni (cucina, bagno, luci, mobili) sono stati progettati appositamente.
Galleria
SHARE
PIN IT
SHARE
PIN IT
SHARE
PIN IT
SHARE
PIN IT
SHARE
PIN IT
SHARE
PIN IT
SHARE
PIN IT
SHARE
PIN IT
SHARE
PIN IT
Bruno Vanbesien Architects, House CM, Zellik, Belgio
SHARE
PIN IT
Bruno Vanbesien Architects, House CM, Zellik, Belgio
SHARE
PIN IT
Bruno Vanbesien Architects, House CM, Zellik, Belgio
SHARE
PIN IT
Bruno Vanbesien Architects, House CM, Zellik, Belgio
SHARE
PIN IT
Bruno Vanbesien Architects, House CM, Zellik, Belgio
SHARE
PIN IT
Bruno Vanbesien Architects, House CM, Zellik, Belgio
SHARE
PIN IT
Bruno Vanbesien Architects, House CM, Zellik, Belgio
SHARE
PIN IT
Bruno Vanbesien Architects, House CM, Zellik, Belgio. Piante
SHARE
PIN IT
Bruno Vanbesien Architects, House CM, Zellik, Belgio. Sezioni
SHARE
PIN IT
House CM, Zellik, Belgio Tipologia: casa unifamiliare Architettti: Bruno Vanbesien Architects (Bruno Vanbesien & Christophe Meersman) Architetto responsabile del progetto: Christophe Meersman Area: 220 mq