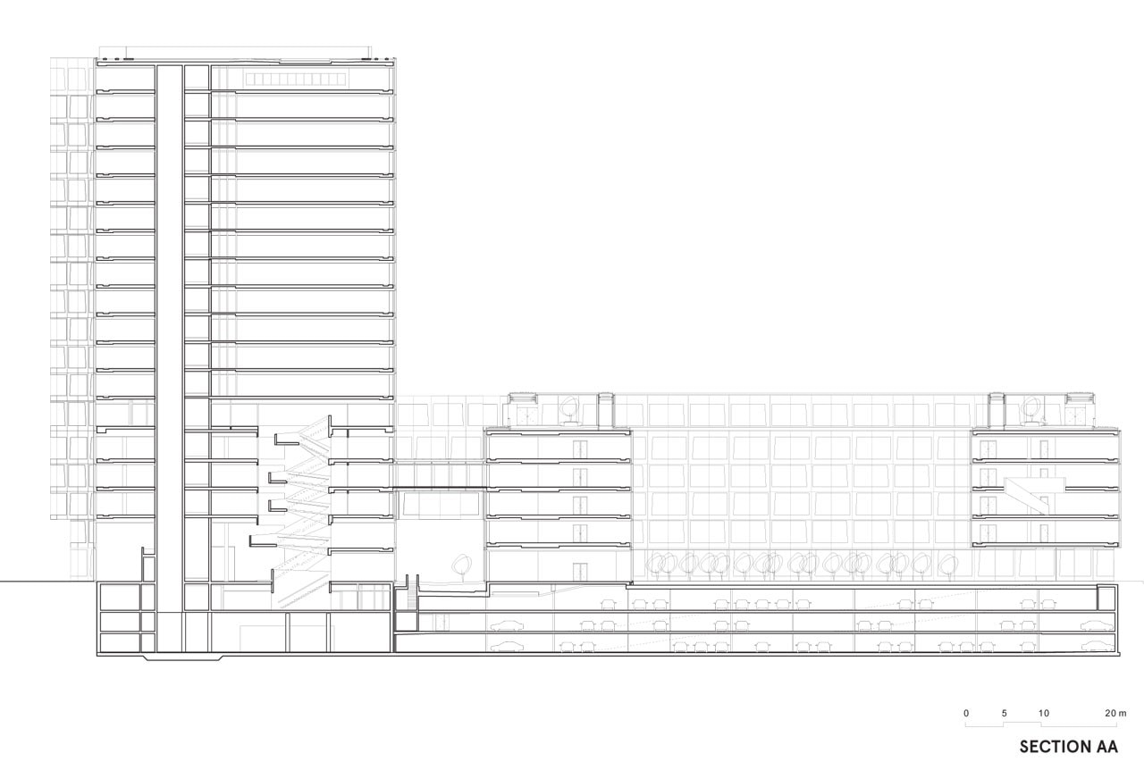
The entire lobby and ground floor are publicly accessible, ensuring a continuous animation throughout both, which compliments the adjacent public square. A central staircase rises from the lobby up and into the 20-story tower.
A café and restaurant are located on the fifth floor, rather than within the lobby, which creates a buffer zone between public and non-public areas. A “business center” is located one floor below, and contains meeting rooms for use with external clients.
This new district’s master plan mandated that all building façades be composed of natural stone, yet it was chosen to frit this building’s full glass façade with an abstracted pattern of Onyx marble – from Mies van der Rohe’s Barcelona Pavilion – which allows the building to blend into its context while simultaneously maintaining its distinguished stance.
Each element of the facade contains a closed cavity system, in which an aluminum coated silver curtain hangs, which fluctuates its degree of shading by responding to external environmental factors–a process administered by a computer controlled algorithm.
Inhabitable volumes adorn the roof of the lower building, with several garden terraces for employees. These gardens contain a singular red Japanese maple tree, which return in the landscaping of the central courtyard below.
Both the 20-story tower and 5-story annex are adjoined underground by a tri-level 300 car parking garage, where most of the extensive IT and mechanical facilities are stored. Similar to a home, the Allianz Headquarters has been infused with espresso corners and lounge like spaces throughout, for instance, its four 8m wide bridges, to stimulate informal conversation within this highly formal working environment.
View gallery
Allianz Headquarters, Richtiplatz 1, Wallisellen, Switzerland
Program: office
Architects: Wiel Arets Architects
Project team: Wiel Arets, Felix Thies, Maik Ilmer
Consultants: GKP Fassadentechnik AG, R+B Engineering AG, Ahochn AG, Jäger Partner Bauingenieure AG, GRP Ingenieure, Kardorff Ingenieure
Client: Allreal Generalunternehmung AG, Allianz Suisse
Area: 72.000 sqm
Completion: spring 2014
