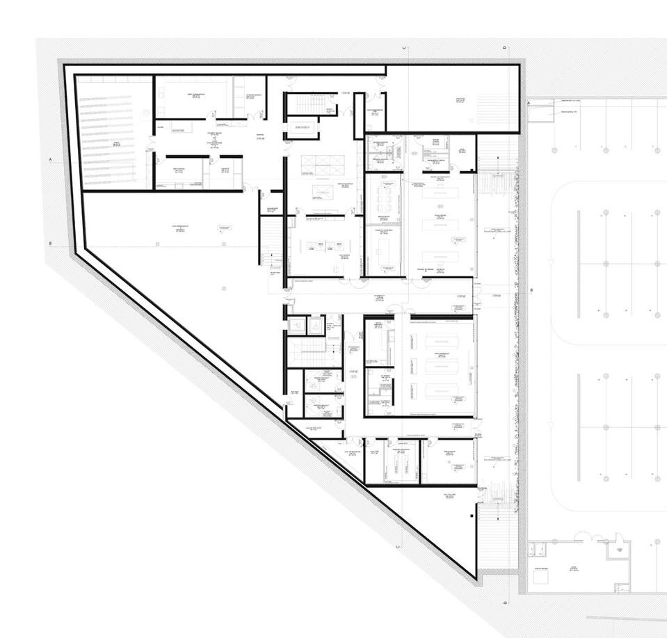
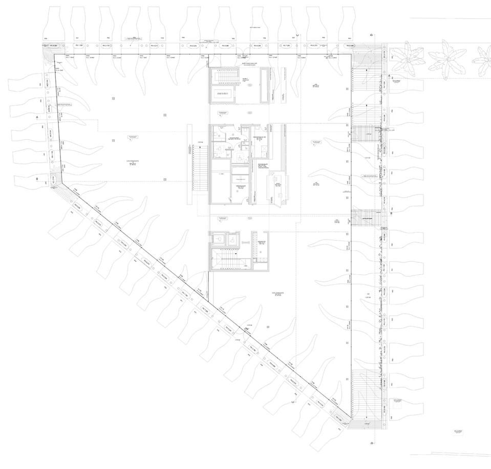
The site is limited:
There was an underground car park and purification plant - their access ramps crossed the site - and a water table at sea level. The ground was made up of earthworks, and the exhibition was potentially in reach of the sea spray.
The site is not neutral:
It pushed us towards increasing the density of the part of the town facing the sea, towards incorporating it as a foundation for the existing townscape. The building had to fit in its setting - and allow pedestrians to reclaim the Menton promenade (Quai Monléon).
The site has its own point of view:
It said it clearly should not be built in front of the covered market, a building of outstanding architectural value. Setting aside 3,000m2 for the use of pedestrians and making this an open surround as well as a garden allowed us to insert the Cocteau Museum into the area, highlighting as well the town facade built in the 1900s.
The Cocteau Museum (which is set above street level as the result of the inclusion of a basement level) could not be allowed to compete with Casa Trenca - this would have created a visual mask to the detriment of the sea. It had rather to be an attractive complement, reconnecting with the original political architecture of this elegant town, a place touched at one time by the great stylistic movements of the twentieth century.
"Everything demonstrable is vulgar: to act where there is no proof requires faith." Cocteau
Do we have to explain everything? The building has to be interpreted as it is: it is there because it could not be anywhere else. It is where is should be, just as the covered market is. It is a part of the town that helps to complete a section of its district and improve the design of the town. It is an urban space presented to the sea.
"The truth is too stark; it does not arouse men's interest." Cocteau
The building must be discovered; it must be intuited. Can it not keep its apparent mystery? The mystery of the truth of its construction? The mystery of its statics? The building's appearance means it asks questions; its transparency is intriguing. It attracts you because it lets you see right inside. It is the idea of the "maze" and its surprises, the use of apparent disorder in the layout of this semi-transparent building, which evokes the unexpected continuity between the different aspects of the artist. We are in his universe.
We had to create an atmosphere in this museum that reflected a force diametrically opposed to light and dark; we aimed to use this game of shadows to produce "the feeling you have when you watch, when you think, when you wonder, and when you dream." "I will make a film as if I wrote it in ink" (Henri Alekan). The choice of this lighting and, above all, the black and white aesthetic was unavoidable.
"We must do today what the whole world will do tomorrow." Cocteau
We must reject the dictatorship of an outdated neo-modernism and use narration, reverie and design as architectural solutions. Rudy Ricciotti
Cocteau Museum (Collection Severin Wunderman), Menton, France
Architect: Rudy Ricciotti
Project architect: Marco Arioldi
Museography: EDP et Associés – Belle Alexandre
Lighting: Lightec – Marcillox Franck
Gestione progetto: Sudeco – Dubief Thierry
Acoustics: Thermibel – Joëlle Latouche
Landscape design: APS Paysagistes Associés
Facade engineering: Van Santen & Associés – J. Bart
Construction: October 2009 – May 2011
