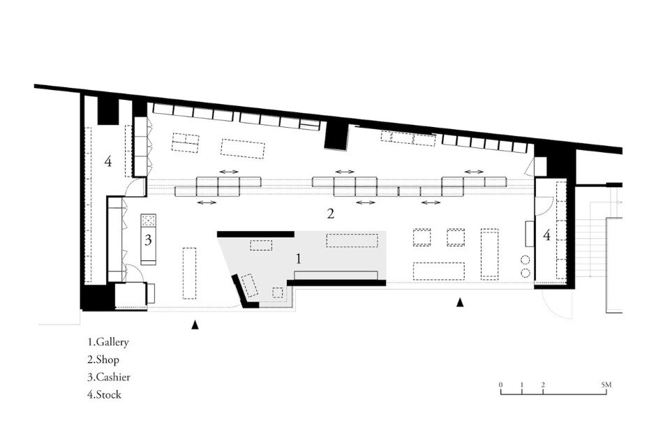
Galleria
Cibone Case seleziona pezzi di artigianato giapponese contemporaneo uniti a oggetti di designer e artisti internazionali che utilizzano il negozio anche come vero e proprio spazio espositivo per allestire mostre. Lo spazio è stato suddiviso all’ingresso in lunghe ‘strisce’ parallele, senza creare partizioni uguali. Inoltre, è stato installato un ampio espositore a scorrimento, ispirato al Tsuzuki-ma, un sistema tradizionale giapponese che collega/divide gli spazi tramite una porta scorrevole. Il risultato è uno spazio a più livelli, adattabile alle diverse scale, da quella espositiva a quella di vendita al dettaglio.
Cibone Case, Tokyo, Giappone
Tipologia: negozio
Design: Koichi Futatusmata, Koichi Shimohira (Case-Real)
Impresa: D.Beain Co.,Ltd.
Committente: Welcome Co., Ltd.
Area: 200 mq
Completamento: 2017
