Galleria
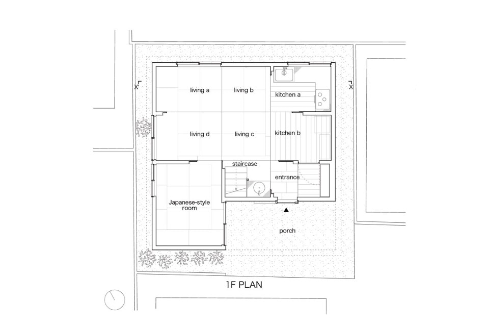
La casa di 79,42 metri quadrati doveva essere divisa in stanze più piccole. Il progetto è iniziato con il desiderio di scoprire spazialità sovraffollate: Kochi ha preso una griglia e ha giocato con i vuoti, sviluppando tutte le combinazioni possibili. Per creare un “paesaggio ad alta densità”, in cui si possono vedere contemporaneamente tutti gli spazi, ha impostato la formula “densità spaziale = numero di camere / volume”, affermando che “se si possono vedere molte stanze in un ambiente piccolo, aumentano la densità e la percezione spaziale”.
Galleria
Casa Ana, Tokyo, Giappone
Tipologia: casa unifamiliare
Architetto: Kazuyasu Kochi, Kochi Architect’s Studio
Ingegneria strutturale: Yukihiro Kato, MI+D
Impresa: Siguma Construction Co., Ltd.
Area del sito: 91,31 mq
Area costruita: 45,52 mq
Superficie: 79,42 mq
Completamento: 2016
