Galleria
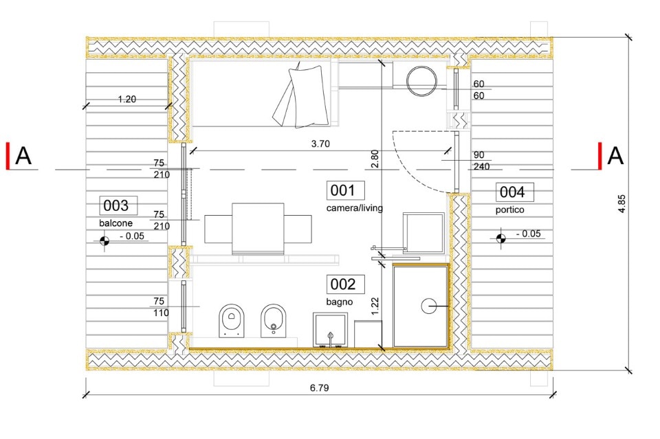
Il progetto comprende cinque unità abitative, adibite a foresteria esterna al Monastero, destinata agli ospiti occasionali della comunità di Siloe. Inserite nella naturale conformazione del terreno, sono state costruite senza apportare alcuna modifica alla natura circostante, sperimentando una nuova forma di abitare sostenibile. Ogni cellula abitativa, del tutto complementare alla struttura del monastero, è composta da una camera con zona cottura, bagno, balcone sul fronte nord e loggia a sud e soddisfa i requisiti richiesti dalla normativa sulle barriere architettoniche. L’edificio con struttura portante e tamponamenti in legno, è antisismico, traspirante, ventilato naturalmente e rispecchia i criteri di bioarchitettura per l’utilizzo di materiali naturali interamente riciclabili.
Galleria
Foresteria Eremo Siloe, Località Poggio Tribolone – Cinigiano, Grosseto
Tipologia: foresteria
Architetti: Edoardo Milesi & Archos
Collaboratori: Paolo Abbadini, Davide Fagiani, Paolo Vimercati
Committente: Comunità Monastica di Siloe
Impresa: Euro Costruzioni 1961 Il benessere dell’abitato
Completamento: 2016
