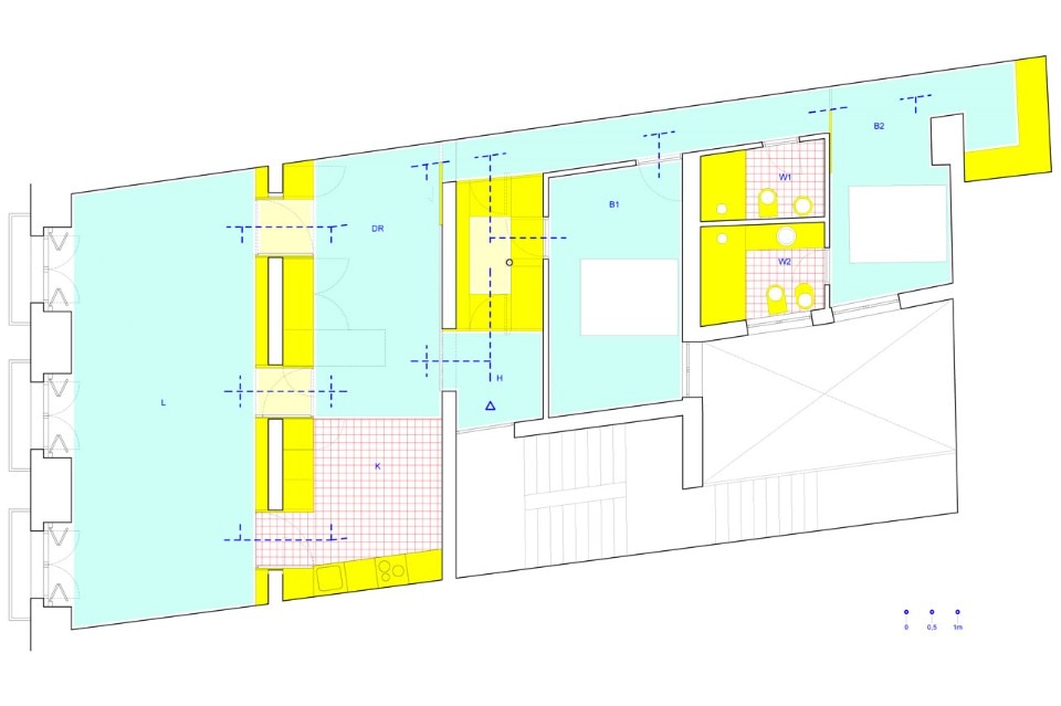
Il salotto e la sala da pranzo sono definiti da un arredo che funge da filtro con la strada: viene utilizzato per per dare ordine agli accessi, contenere l’illuminazione e i servizi tecnici e immagazzinare i vari oggetti della casa. Ci sono anche alcuni compartimenti nascosti e un tavolo ribaltabile.
Letto, Madrid
Tipologia: appartamento
Architetto: elii – Uriel Fogué, Eva Gil, Carlos Palacios
Team di progetto: Ana López, Sofia Coutsoucos (coordinamento), Eduardo Castillo, Irene de Santos
Falegnameria: Alfredo Merino Caldas
Superficie: 111,52 mq
Completamento: 2017
