Galleria
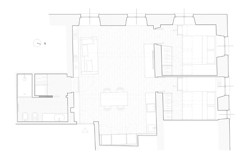
L’abitazione è organizzata attorno a un grande spazio centrale, occupato dalla zona giorno, che affaccia sul mare attraverso due finestre. Dietro alla parete rivestita di resina grigia si trovano due camere da letto, che comunicano col soggiorno attraverso le due porte esistenti che sono state recuperate e riverniciate. Gli altri due lati dello spazio principale sono delimitati da un grande mobile bianco a forma di “L”, all’interno del quale trovano collocazione tutti gli elementi di servizio della casa.
White Stripes, Camogli, Genova
Tipologia: appartamento
Architetto: Gosplan
Superficie: 60 sqm
Completamento: 2017
