View gallery
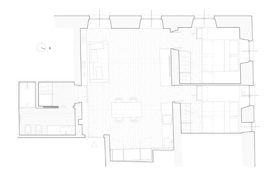
The house is arranged around a large living space with two windows open towards the horizon. Behind the gray wall there are two bedrooms, connected to the living room by two original reused doors. The other two sides of the living room are bordered by a huge, white, L-shaped closet that contains all the house facilities: a guest wardrobe, a toilet, a bookshelf, a pantry, a fridge, an oven and a cellar.
White Stripes, Camogli, Genova
Program: apartment
Architect: Gosplan
Area: 60 sqm
Completion: 2017
