Risultati
Nessun elemento trovato
Ricerca troppo corta
Casa in Tunisia
BA-Studio ha ristrutturato un un vecchio “oukala” che si trova nel cuore della città di Marsa, in Tunisia, lavorando con artigiani locali per le finiture dell’appartamento.
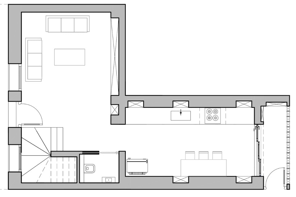
L’edificio esistente è un vecchio “oukala” che si trova nel cuore della città di Marsa, in Tunisia, in un tranquillo quartiere nei pressi di un parco pubblico. Il proprietario desiderava avere una cucina abitabile, un salotto, due stanze da letto, un terrazzo luminoso e dei bei colori in casa. L’idea di progetto è quella di aprire la cucina al salotto e di estenderla al terrazzo a sud, con una facciata continua sull’altro lato.
BA-Studio, Casa in Tunisia, Marsa, 2016
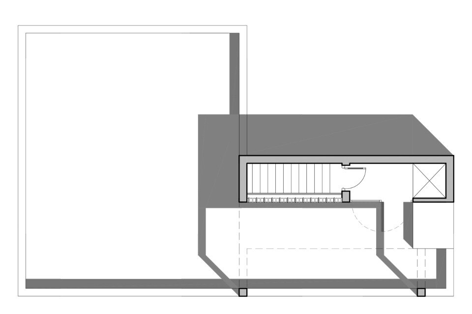
La terrazza dell’abitazione ha una duplice funzione. Permette l’ingresso della luce naturale nel cuore della casa con una grande finestra in corrispondenza della scala e consente ai residenti di godersi il clima mite e il paesaggio della città tunisina.
BA-Studio, Casa in Tunisia, Marsa, 2016
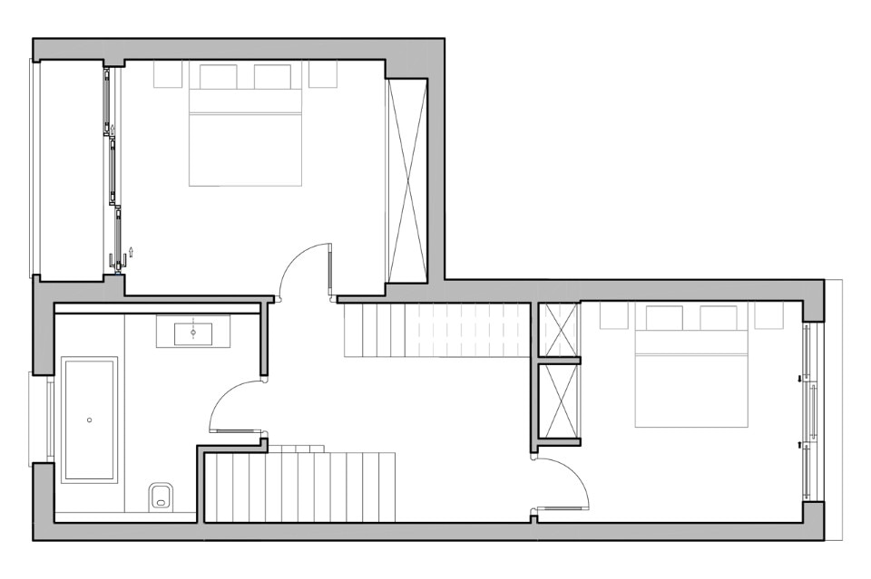
Assieme a un artigiano della città di Nabeul sono state progettate delle piastrelle di cemento con diverse combinazioni di colori. Tutto il piano terra è stato coperto dello stesso tipo di piastrelle per dare unitarietà allo spazio. Il primo piano e la terrazza sono invece rifiniti con cemento lucidato, in continuità con il pavimento delle scale. È stato inoltre utilizzato il “barmaqli”, un mattone forato tradizionale, perfetto per ottenere un effetto di semi-trasparenza ed evitare il surriscaldamento dell’abitazione, consentendo ampie aperture.
Galleria
SHARE
PIN IT
SHARE
PIN IT
SHARE
PIN IT
SHARE
PIN IT
BA-Studio, Casa in Tunisia, Marsa, 2016
SHARE
PIN IT
/Users/macbookpro/Documents/Etudes/Stages/Stage_BA-Studio/BA-Studio_Duplex La Marsa/Publication/BA-Studio_Duplex la marsa_Publication.dwg
BA-Studio, Casa in Tunisia, piano terra
SHARE
PIN IT
/Users/macbookpro/Documents/Etudes/Stages/Stage_BA-Studio/BA-Studio_Duplex La Marsa/Publication/BA-Studio_Duplex la marsa_Publication.dwg
BA-Studio, Casa in Tunisia, primo piano
SHARE
PIN IT
/Users/macbookpro/Documents/Etudes/Stages/Stage_BA-Studio/BA-Studio_Duplex La Marsa/Publication/BA-Studio_Duplex la marsa_Publication.dwg
BA-Studio, Casa in Tunisia, terrazza
SHARE
PIN IT
Casa in Tunisia, Marsa Tipologia: ristrutturazione Architetto: Samia Ben Abdallah – BA-Studio Completamento: 2016