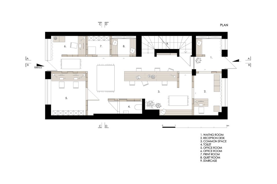
Gli architetti hanno lasciato a vista il telaio degli scaffali ed esaltato la loro estetica riempiendoli con pannelli di policarbonato semitrasparente. Grazie a questa soluzione gli interni sono ampi e luminosi. Le attività svolte nei singoli spazi conservano la loro privacy, permettendo tuttavia alla luce del giardino di penetrare in tutto il piano.
Ztudio, Varsavia
Tipologia: ufficio
Architetti: MFRMGR Frejda & Gratkowski Architekci
Collaboratori: Jakub Róziewicz, Klaudia Zyza
Superficie: 245 mq
Completamento: 2016
