Domus Digital Archive PRO on sale

Tamarit Apartment

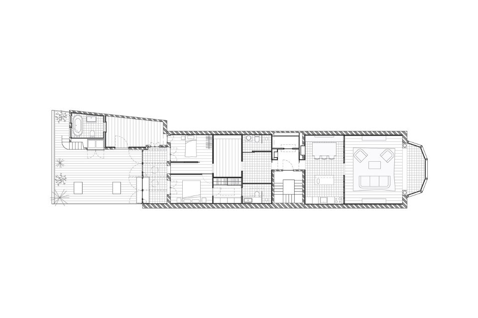
The project takes place in a long, narrow apartment with an elegant bow-window facade on one side, connecting to the main street, and a large interior courtyard on the other. 

RAS Arquitectura, Tamarit Apartment, Barcelona, 2015
The project takes place in a long, narrow and stately apartment whose facade connects to the access street via an elegant bow-window and to a large, but not very attractive, interior courtyard through a gallery. In between, 140 sqm to resolve the more or less conventional housing requirements.
RAS Arquitectura, Tamarit Apartment, Barcelona, 2015
RAS Arquitectura, Tamarit Apartment, Barcelona, 2015
Two key strategies drive the design as a whole. The first is that there are no hallways between rooms; they connect directly via an enfilade of sorts. This gives rise to a series of intermediary spaces that lack a defined code or function, which transforms them into potential play, reading, storage rooms, and so on. These spaces, which serve as a backbone to the dwelling, don’t even feature doors, and their partitions fall short of the ceiling, making them, as it were, rooms within an original container space.
RAS Arquitectura, Tamarit Apartment, Barcelona, 2015
RAS Arquitectura, Tamarit Apartment, Barcelona, 2015
The second decision is structuring all rooms on three sections, based on three levels. A top level runs throughout the house and is painted grey. Nothing breaks up this level, since partitions do not reach up to the ceiling. The lower level, running from the floor to a height of 60 cm, features flooring rising up the partitions in distinctive contrast for each space.
RAS Arquitectura, Tamarit Apartment, Barcelona, 2015
RAS Arquitectura, Tamarit Apartment, Barcelona, 2015
The entire interior space is thus organised as a series of rooms which are set off but connected and which always connect to the two exits to the outside, through which light penetrates into more interior spaces, creating a beautiful light gradation. Spaces which require more privacy follow a similar pattern but with greater privacy.

Tamarit apartment, Barcelona, Spain
Program: apartment
Architets: RAS Arquitectura
Engineering: Mares Ingenieros
Structure: Diagonal Estructuras
Area: 140 mq (indoors) + 60 sqm (outdoors)
Completion: 2015

Latest on News

Latest on Domus

China Germany India Mexico, Central America and Caribbean Sri Lanka Korea icon-camera close icon-comments icon-down-sm icon-download icon-facebook icon-heart icon-heart icon-next-sm icon-next icon-pinterest icon-play icon-plus icon-prev-sm icon-prev Search icon-twitter icon-views icon-instagram