Archivio Digitale Domus PRO in offerta

Casa a Sierosław

Progettata da mode:lina architekci a Sierosław, in Polonia, la casa appartiene a una piccola famiglia ed è allo stesso tempo grezza, minimalista, accogliente e sicura.

Mode:lina architekci, Casa a Sierosław, Polonia, 2016
Progettata da mode:lina architekci a Sierosław, in Polonia, appartiene a una piccola famiglia: due giovani genitori, il loro bambino e un cane. Il compito degli architetti era quello di creare un ambiente grezzo e minimalista, assecondando il gusto dei genitori, ma che fosse allo stesso tempo accogliente e sicuro per il bambino.
Mode:lina architekci, cCasa a Sierosław, Polonia, 2016
Mode:lina architekci, Casa a Sierosław, Polonia, 2016
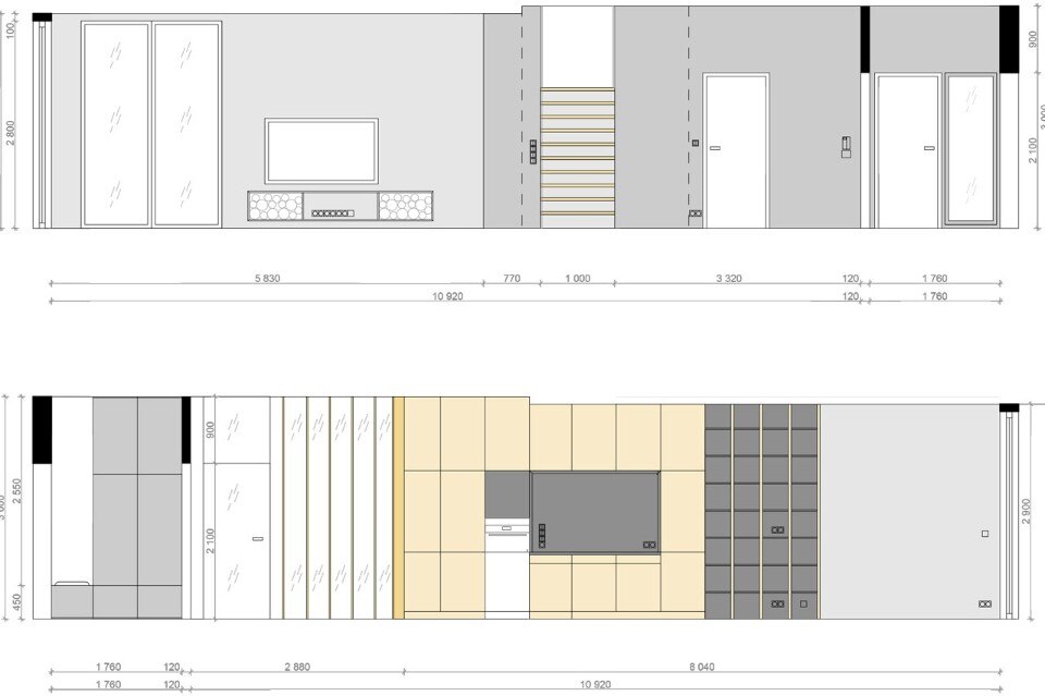
Un grande cubo di vetro nella zona cucina nasconde la dispensa. Con pareti traslucide, brilla solo se la luce interna è accesa. La cucina a isola è un cubo grigio in acciaio che si allinea con l’altezza del tavolo da pranzo in legno.
Mode:lina architekci, Casa a Sierosław, Polonia, 2016
Mode:lina architekci, Casa a Sierosław, Polonia, 2016
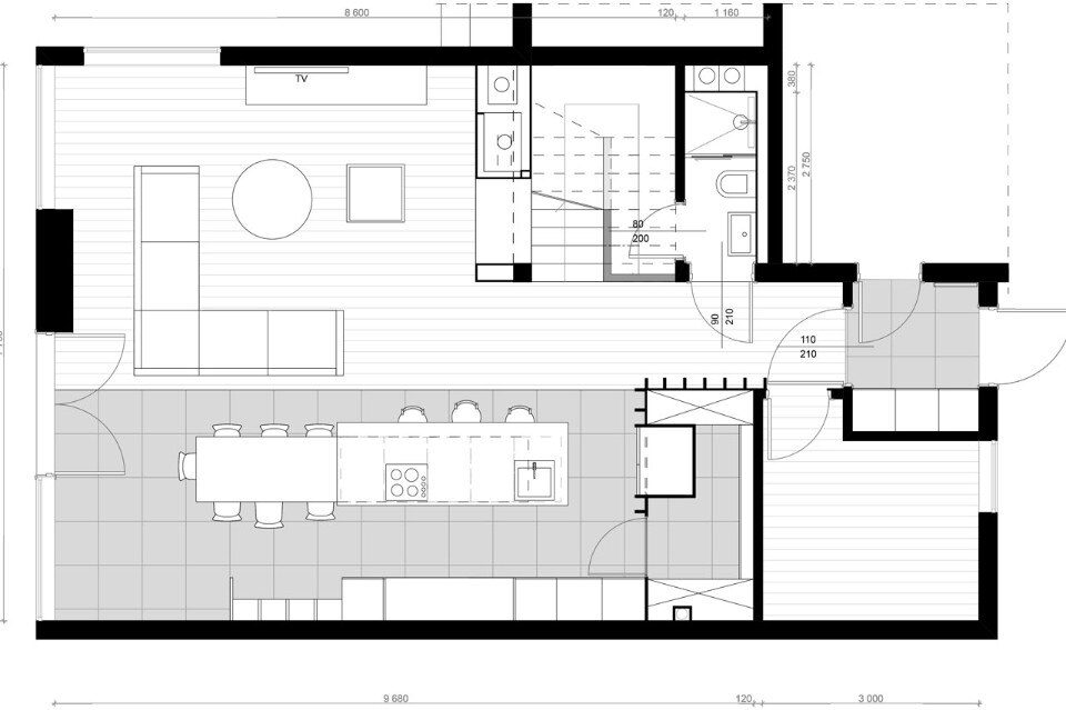
L’area comune della casa, il cui cuore è la cucina con la grande isola, è un grande spazio unico. Tutte le sue funzioni si connettono tra loro. L’interno è separato dal giardino da ampie vetrate, dando l’impressione che il giardino sia collegato con l’interno. Gli architetti hanno fatto in modo che questa fosse una sala unica, grande, aperta e luminosa.
Mode:lina architekci, Casa a Sierosław, Polonia, 2016
Mode:lina architekci, Casa a Sierosław, Polonia, 2016
Il camino con una grande struttura in cemento crea un interessante passaggio dalle scale al salotto, ancora una volta dando l’impressione di transizione di una zona all’altra.

Casa a Sierosław
Tipologia: casa unifamiliare
Architetti: mode:lina architekci
Team di progetto: Paweł Garus, Jerzy Woźniak, Kinga Kin
Superficie: 210 mq
Completamento: 2016

Ultime News

Altri articoli di Domus

China Germany India Mexico, Central America and Caribbean Sri Lanka Korea icon-camera close icon-comments icon-down-sm icon-download icon-facebook icon-heart icon-heart icon-next-sm icon-next icon-pinterest icon-play icon-plus icon-prev-sm icon-prev Search icon-twitter icon-views icon-instagram