Risultati
Nessun elemento trovato
Ricerca troppo corta
The Park・Ing Ginza
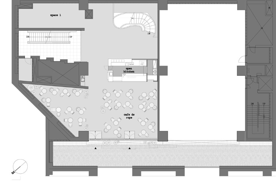
Formato da un bar, da spazi commerciali e da una galleria, The The Park・Ing Ginza è un nuovo concept store al terzo e quarto piano seminterrato del Sony Building a Tokyo.
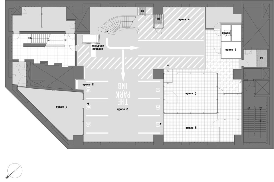
Il nuovo concept store si trova al terzo e quarto piano seminterrato del Sony Building a Tokyo. Caratteristica fondamentale dello spazio è che condivide il terzo piano seminterrato con un parcheggio, il Nishi-Ginza Parking Lot, consentendo agli automobilisti di parcheggiare ed entrare a piedi nel negozio, o addirittura guidare nello spazio stesso.
Nobuo Araki/The Archetype, The Park・Ing Ginza, Tokyo, 2016
Il Nishi-Ginza Parking Lot ha già una particolare struttura a sé stante. Ha una capacità di 800 veicoli e in essa si trovano altre funzioni tra cui un autonoleggio, ristoranti e un’area di sosta. Ha sicuramente un’atmosfera diversa dai normali parcheggi di Tokyo.
Nobuo Araki/The Archetype, The Park・Ing Ginza, Tokyo, 2016
Apprezzando la forma inusuale e l’atmosfera del parcheggio, gli architetti hanno quindi progettato il negozio in armonia con l’ambiente circostante. Il concept store è costituito da un bar, da spazi commerciali e da una galleria, senza nessun confine netto tra gli ambienti. Ogni sezione è stata progettata per essere flessibile e in grado di ospitare eventi indipendentemente, come ad esempio le svendite di oggetti dalle cantine. Il negozio racchiude un senso di transitorietà – una bellezza tipica di una metropoli come Tokyo – e riesce sempre a soprendere visitatori.
Nobuo Araki/The Archetype, The Park・Ing Ginza, Tokyo, 2016
Per assecondare la natura flessibile dello spazio sono stati utilizzati molti materiali da cantiere. Questi ben si accoppiano con i materiali usati nel parcheggio. Il risultato è che atmosfera e materiali del parcheggio si estendono fino al negozio. The Park · Ing Ginza incarna la natura transitoria della metropoli ed è uno spazio unico nel caos di Tokyo.
Galleria
SHARE
PIN IT
SHARE
PIN IT
SHARE
PIN IT
SHARE
PIN IT
SHARE
PIN IT
SHARE
PIN IT
Nobuo Araki/The Archetype, The Park・Ing Ginza, Tokyo, 2016
SHARE
PIN IT
Nobuo Araki/The Archetype, The Park・Ing Ginza, Tokyo, 2016
SHARE
PIN IT
Nobuo Araki/The Archetype, The Park・Ing Ginza, Tokyo, 2016
SHARE
PIN IT
Nobuo Araki/The Archetype, The Park・Ing Ginza, Tokyo, 2016
SHARE
PIN IT
160614 parking plan B4F
Nobuo Araki/The Archetype, The Park・Ing Ginza, Tokyo, 2016
SHARE
PIN IT
160614 parking plan B3F
Nobuo Araki/The Archetype, The Park・Ing Ginza, Tokyo, 2016
SHARE
PIN IT
The Park・Ing Ginza, Tokyo Tipologia: concept store Architettura:Nobuo Araki/The Archetype Nobuo Araki, Kenta Okamura Cliente: JUN Group Costruzione: Tanseisha Superficie totale: 725 mq Completamento: 2016