results
No results
Please enter a long search term
The Park・Ing Ginza
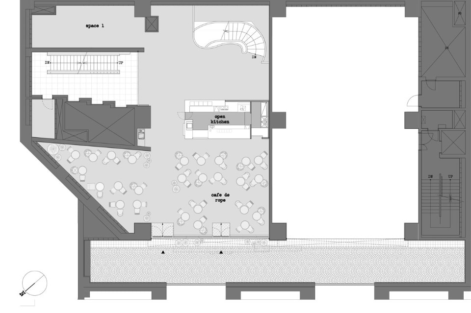
Situated on the third and fourth basement floors of a building in Tokyo, Nobuo Araki’s The Park・Ing Ginza consists of a cafe, a retail space and a gallery.
The new space is situated on the third and fourth basement floors of the Sony Building. One notable feature of the space is that it shares the third basement floor with Nishi-Ginza Parking Lot, enabling drivers to park and enter on foot, or even drive into the space itself.
Nobuo Araki/The Archetype, The Park・Ing Ginza, Tokyo, 2016
Nishi-Ginza Parking Lot is a distinctive structure in its own right. It has a capacity of 800 vehicles and has tenants including a rent-a-car station, restaurants and a rest area. As a result, it has an atmosphere that differs from ordinary parking lots in Tokyo.
Nobuo Araki/The Archetype, The Park・Ing Ginza, Tokyo, 2016
With an appreciation for the distinct form and atmosphere of the parking lot, we designed the space to function as a store while remaining in harmony with its surroundings. The store consists of a cafe, retail space and gallery, with no clear boundaries between them. Each section has been designed to be flexible and can host events independently, such as garage sales. The store encapsulates a sense of transience – one of the charms of a metropolis like Tokyo – and constantly provides visitors with surprises.
Nobuo Araki/The Archetype, The Park・Ing Ginza, Tokyo, 2016
In order to accommodate the flexible nature of the space, temporary construction materials have been used throughout the interior. These materials resonate with the materials present in Nishi-Ginza Parking Lot. The result is that upon entering the store, visitors get a feel for the parking lot, with its atmosphere and materiality extend into the shop. While The Park・Ing Ginza embodies the transient nature of the metropolis, it also presents itself as a distinctively unique space within the chaos of Tokyo.
View gallery
SHARE
PIN IT
SHARE
PIN IT
SHARE
PIN IT
SHARE
PIN IT
SHARE
PIN IT
SHARE
PIN IT
Nobuo Araki/The Archetype, The Park・Ing Ginza, Tokyo, 2016
SHARE
PIN IT
Nobuo Araki/The Archetype, The Park・Ing Ginza, Tokyo, 2016
SHARE
PIN IT
Nobuo Araki/The Archetype, The Park・Ing Ginza, Tokyo, 2016
SHARE
PIN IT
Nobuo Araki/The Archetype, The Park・Ing Ginza, Tokyo, 2016
SHARE
PIN IT
160614 parking plan B4F
Nobuo Araki/The Archetype, The Park・Ing Ginza, Tokyo, 2016
SHARE
PIN IT
160614 parking plan B3F
Nobuo Araki/The Archetype, The Park・Ing Ginza, Tokyo, 2016
SHARE
PIN IT
The Park・Ing Ginza, Tokyo Program: concept store Architect:Nobuo Araki/The Archetype Nobuo Araki, Kenta Okamura Client: JUN Group Contractor: Tanseisha Total floor area: 725.63 sqm Completion: 2016