Galleria
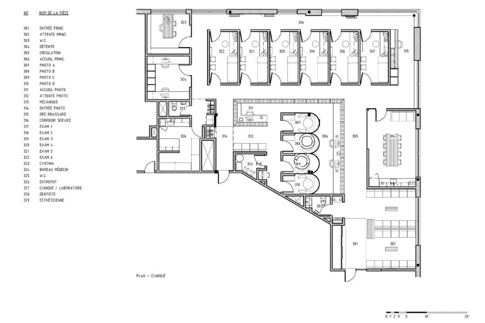
Clinique D diaphane, Laval, Quebec
Tipologia: ristrutturazione di una clinica dermatologica
Architetti: L. McComber ltée
Team di progetto: David Grenier, Laurent McComber
Grafica: Atelier Chinotto
Illuminazione: Richporter Lighting, Éclairage
Impresa: Brago Construction
Costo: 309.000 €
Area: 900 mq
