Gli spazi ampi e i soffitti alti, l’abbondante luce naturale e la conservazione di alcuni degli arredi e delle decorazioni originali non solo erano tra i desiderata del cliente, ma anche i caratteri che meglio ne definiscono l’identità.
Il progetto incorpora la volontà di restaurare, conservare e valorizzare queste caratteristiche in combinazione con una proposta che contempla un esercizio di interpretazione dell’architettura di Lisbona di questo periodo e tutte le sue sfaccettature.
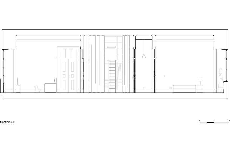
La distribuzione spaziale dell’appartamento corrispondeva alle esigenze del cliente, è stato così possibile mantenere la sua struttura tipologica e risolvere facilmente l’organizzazione funzionale. Gli ambienti sono stati concepiti e progettati in modo da rimanere aperti e interagire tra loro.
In cucina, dove i muri conservavano ancora le piastrelle originali del XIX secolo, gli interventi più recenti avevano introdotto pavimentazioni e finiture, rimosse da rar studio.
I bagni sono stati oggetto di un intervento radicale. Alla camera da letto matrimoniale è stato collegato un bagno padronale creando un nuovo punto di accesso, mentre quello più grande è a disposizione del resto della casa. Entrambi sono stati riprogettati strutturalmente con particolare attenzione alle funzioni integrate e rifiniti con due marmi diversi.
Oltre ai nuovi impianti – energia elettrica, illuminazione, riscaldamento centralizzato e infissi – che si affiancano alle dotazioni ristrutturate (tra cui i pavimenti e i soffitti intonacati) è stato intrapreso un processo di cernita: gli strati del tempo, i programmi attuati e i conseguenti adattamenti sono stati oggetto di una serie di scelte. Le nuove soluzioni sono state integrate senza compromettere ciò che si è deciso di conservare.
Appartamento Nana, Lisbona, Portogallo
Tipologia : apppartamento
Architetti : rar.studio
Impresa : RVI - Recuperação e Valorização de Imóveis, Lda.
Area : 200 mq
Completamento : 2015
