Its expansive area and lofty ceilings, the abundant natural light and the conservation of some of the original finishings and decorative features were not only among the characteristics that the client sought but are also those that best define this home’s identity.
The project correspondingly incorporated the desire to restore, conserve and enhance these same characteristics in conjunction with a proposition contemplating an exercise in interpreting the Lisbon architecture of this period and its respective constituent facets.
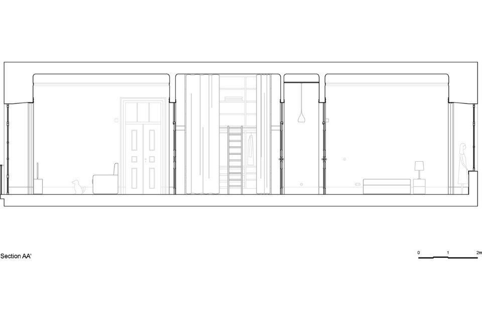
The spatial layout of the apartment broadly corresponded to the needs of the client and thus enabling both the safeguarding of its advantageous typological structure and the easy resolution of the programmatic impositions. These inner rooms and their respective contents were conceived and designed so as to be able to remain permanently open and interacting.
In the kitchen, where the walls still retained the original 19th century tiles, more recent interventions had introduced disqualifying features, especially the floor tiling and the finishings applied to the work surfaces, and these were correspondingly removed.
The bathrooms, with misaligned layouts and means of access, were subject to profound intervention. In the master bedroom, a new point of access to the bathroom adjoining on the western façade resulted in its own private bathroom in addition to another larger bathroom for the remainder of the house. Both were structurally redesigned with a particular emphasis on the built features and finished in Portuguese pink and tiger skin marbles.
In addition to new systems and infrastructures – electricity, lighting, central heating and window frames – alongside those that were restored, such as the flooring and the plastered ceilings, a triage process was also undertaken. The various layers of time, the programs implemented and their consequent adaptations drove to a series of choices. The new solutions were integrated without jeopardising those selected for retention; the old, the askew, the already existing exceptions and those resulting from the work itself.
Apartment Nana, Lisboa, Portugal
Program : apartment
Architects : rar.studio
Contractor : RVI - Recuperação e Valorização de Imóveis, Lda.
Area : 200 sqm
Completion : 2015
