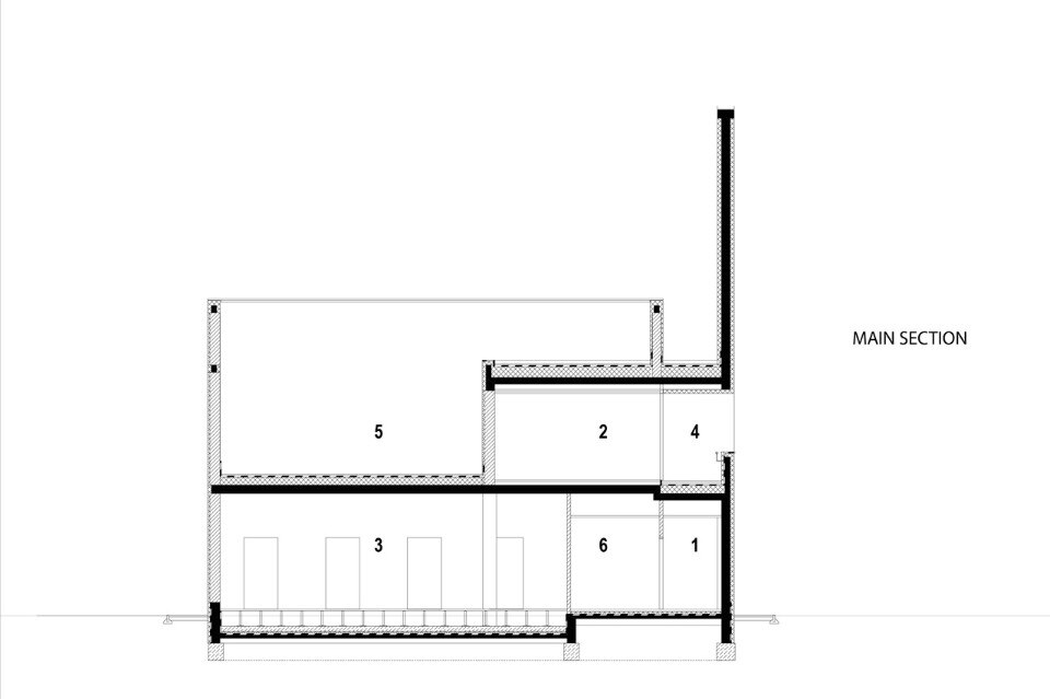
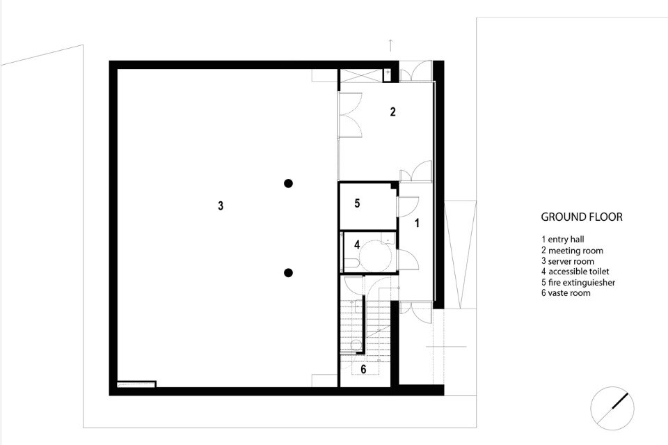
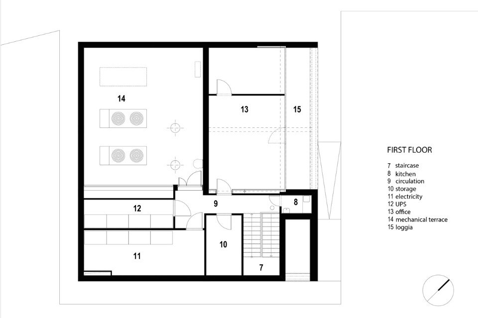
L’edificio di 400 mq, sviluppato su due piani, comprende una sala server al piano terra, e speciali aree elettriche e di ingegneria al primo piano. Le unità di raffreddamento si trovano in un’area esterna murata. Oltre a questo, vi è anche un laboratorio di ricerca e una postazione di lavoro.
Il dimensionamento degli spazi è pensato per lo sviluppo a lungo termine, e permette di raddoppiare le risorse di superc computer nel giro di pochi anni.
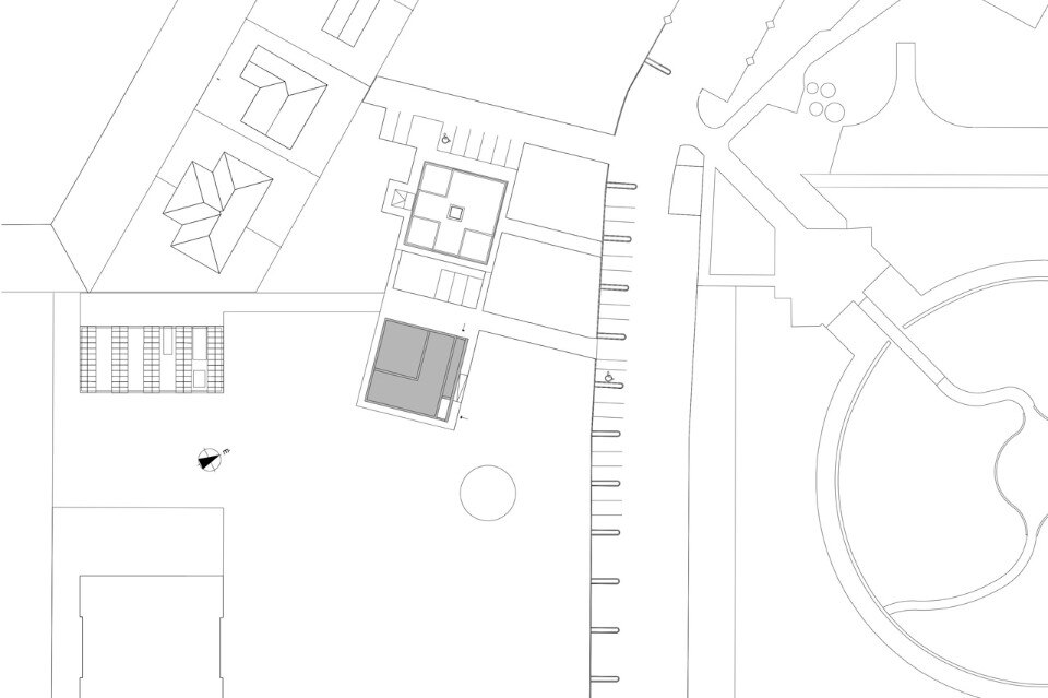
L’edificio esistente e quello nuovo hanno una geometria identica per formare una singola composizione. Mentre l’altezza del primo è determinata da una struttura a griglia forata, della del nuovo centro raggiunge la stessa altezza attraverso una parete di chiusura a nord. I due edifici rispondono ai rispettivi principi strutturali di base in modo raffinato e usano la loro forza per definire una direzione spaziale decisiva nel campus, creando dinamiche spaziali.
Il super computer centre è stato creato usando materiali semplici ed economici. Il bassorilievo aggiunto alla facciata principale racconta le funzioni dell’edificio.
Galleria
Super computer centre, Debrecen, Ungheria
Tipologia: edificio universitario
Architetti: Napur Architect (Marcel Ferencz Habil)
Strutture: Ferenc Pap
Ingegneria: Géza Porosz
Elettricitià: Provill Kft.
Imprese: Nadép Kft., Banktrade Banktechnika Kft., Inter-Computer-Informatika Számítástechnikai Kft.
Costo: 650,000,000 €
Area: 400 sqm
Completamento: luglio 2015
