Due terzi delle coppie di sposi affitta a riscatto, e il 49,3% di quelle coppie pagano da 100 milioni di KRW a 200 milioni. La tipologia standard è sovra-inflazionata e i prezzi delle abitazioni limitano la scelta di una casa per una giovane coppia.
I clienti stavano per sposarsi. Ci hanno chiesto di costruire una casa in base alle loro richieste fondamentali su come iniziare una vita insieme, soddisfacendo l’essenziale. Volevano una vita modesta ma ricca.
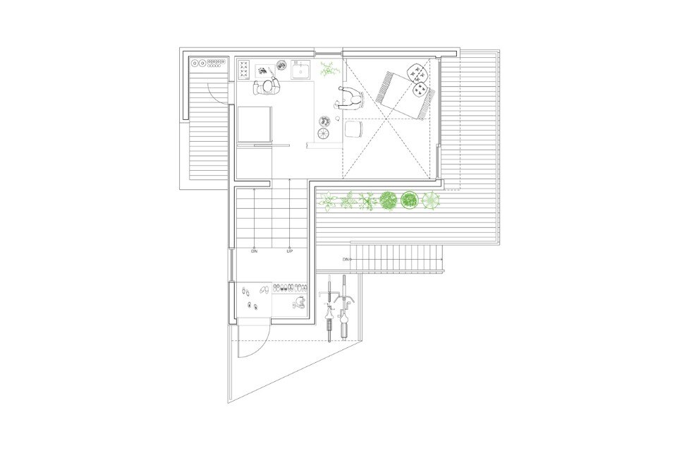
Il progetto nasce da una soluzione realistica che consentisse alla copiia di muoversi in unao spazio alternativo, diverso da un condominio o un palazzone. Il sito si trova all’ingresso della Gaemimaeul, una delle poche colonie rimaneste di straccivendoli a Seoul, Seodaemoon-ku, Hongjaedong.
Le mura di questa antica baraccopoli sono decorate con dipinti nel tentativo di abbellire la zona, e questo produce un’atmosfera particolare. Due strade adiacenti – 8m di larghezza sul lato nord-est e 3 m di larghezza sul lato nord-ovest – si incontrano in un angolo, e a sud-ovest e sud-est del sito vi sono stretti vicoli pedonali.
50 sqm House, Hongjae-dong, Seodaemun-gu, Seoul, Korea
Tipologia: casa unifamiliare
Archittto: OBBA Office for Beyond Boundaries Architecture
Area: 85,00 mq
Area costruita: 44,30 mq
Completamento: 2015
