Le piante costituiscono una parte importante dello spazio, che utilizza la biofilia – portando elementi del mondo esterno negli ambienti interni – per aumentare la soddisfazione sul posto di lavoro. Una serie di piante rampicanti agganciate al telaio spaziale, solidificheranno lo spazio man mano che crescono.
Nella sala di presentazione, un sistema idroponico a LED getta una luce color magenta chiaro sulle piante, riecheggiando il logo di Squint/Opera e aggiungendo un ulteriore elemento di artificialità nello spazio. Gli slittamenti e i difetti tra il mondo fisico e digitale possono offrire nuovi mondi alla percezione umana. È in questo punto di intersezione tra rappresentazione e realtà in cui si inserisce il significato del progetto.
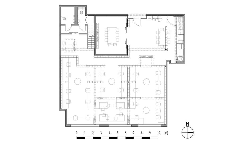
Squint/Opera, Melbourne, Australia
Tipologia: ufficio
Architetti: SIBLING
Completamento: 2015
