Planting forms an important part of the space with biophilia – bringing elements of the outside in – enhancing workplace satisfaction. Planting boxes containing creepers click into the space frame, which will solidify the space as they grow.
In the presentation room, an LED hydroponic system throws magenta light on the planting, referencing the Squint/Opera logo, and casting a further element of artificiality over the space. The slippages and glitches between the physical and digital world may offer new worlds to human perception. It is this point of intersection between representation and reality where meaning for the user is made.
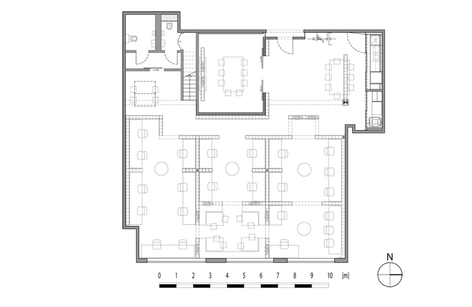
Squint/Opera, Melbourne, Australia
Program: office
Architects: SIBLING
Completion: 2015
