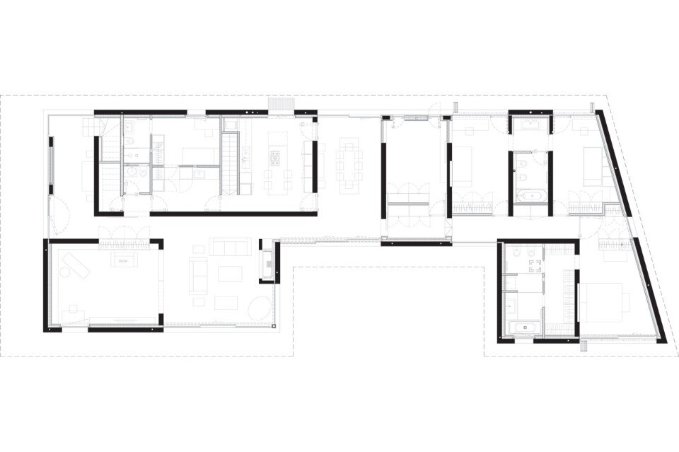
La pianta è un alternarsi di spazi liberi e vetrati e di volumi pieni ospitanti le zone tecniche e di servizio e le stanze più raccolte, come lo studio. Dall’ingresso, posizionato a poco più di 2 metri di altezza della strada, un lungo corridoio attraversa tutto il piano principale dilatandosi verso il soggiorno e la zona pranzo. L’impianto cosi pensato permette a tutti gli ambienti di aprirsi verso il bosco: l’architettura diventa un filtro ambientale.
Un patio centrale amplifica il rapporto fra interno ed esterno. I volumi, costituiti da setti portanti, sono di altezze diverse ed emergono al livello superiore costruendo un paesaggio artificiale contrapposto al paesaggio naturale delle montagne.
La scelta dei materiali utilizzati è volutamente ristretta; i volumi sono in cemento chiaro trattato con vernici riflettenti.
All’interno l’isolante è rivestito di gesso bianco. Le sistemazioni esterne sono state eseguite con pietra locale. Le partiture opache in alluminio degli infissi partecipano alla contemporaneità del progetto.
Galleria
Villa G, Sorengo, Lugano, Svizzera
Programma: casa unifamiliare
Architetti: Scape
Strutture e consulenza direzione lavori: Lorenzo Medici
Impianti: Mauro Gavazzini
Impresa: Dado s.r.l.
Paesaggio: Letizia Carpi
Budget: 2.150.000 €
Area: 340 mq
Completamento: 2014
