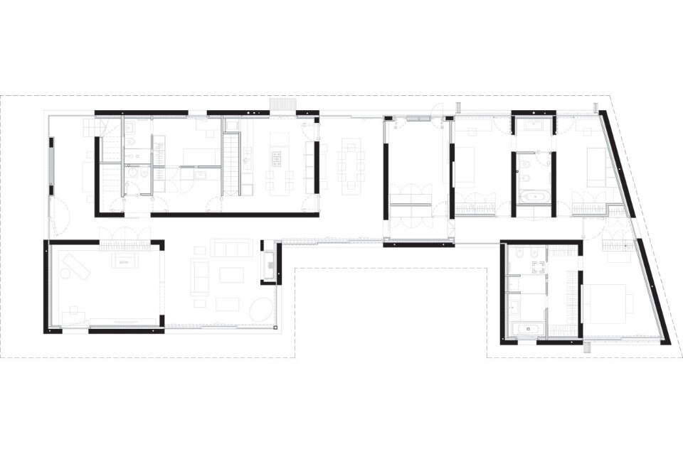
The plan involves an interchange of open glassed areas and enclosed volumes to house the technical and service zones as well as the closed rooms such as the study. From the entrance, positioned just over two metres from the road, a long corridor crosses the entire main floor, broadening as it reaches the sitting room and dining area.
Villa G has been designed so as to permit all the internal areas to open onto the wood: allowing architecture to become an environmental filter. A central patio increases further the important relationship between inside and outside. The volumes, made up of load-bearing partition walls, are of different heights and emerge at the upper level to construct an artificial landscape that contrasts with the natural landscape of the mountains.
View gallery
Villa G, Sorengo, Lugano, Switzerland
Program: single-family house
Architects: Scape
Structure and Construction supervision: Lorenzo Medici
Plants engineering: Mauro Gavazzini
Contractor: Dado s.r.l.
Landscape: Letizia Carpi
Budget: 2.150.000 €
Area: 340 sqm
Completion: 2014
