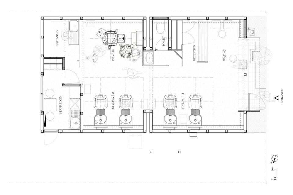
La forma dell’edificio, simile a una casa, riflette l’intento di costituire un’intima connessione con la città. Nella parte anteriore del negozio una grande finestra consente al proprietario di salutare i passanti, come sua abitudine.
Attraverso questa vetrina gli architetti hanno creato anche un collegamento tra la città e il negozio.
Galleria
Folm Arts, Sakai, Osaka, Giappone
Tipologia: centro estetico
Architetti: Tsubasa Iwahashi Architects
Area: 55 mq
Completamento: 2013
