The shape of the building, similar to an house, reflects the image of intimate connection with the town. In the shop front a big windows allows the owner to greet passers, as usual.
Through this shop window the architects created also a connection between the town and the shop.
View gallery
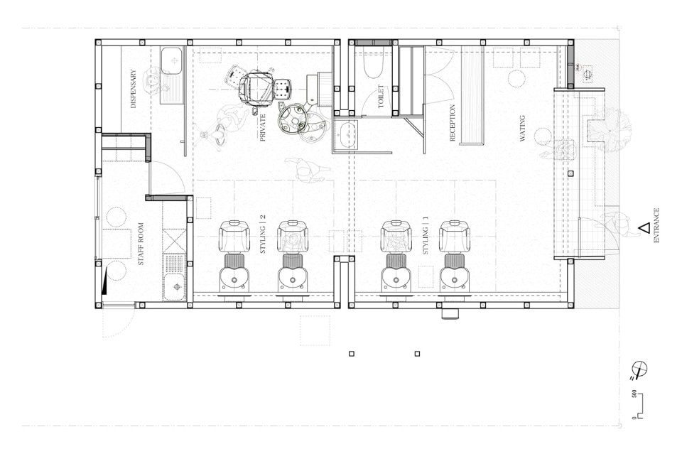
Folm Arts, Sakai, Osaka, Japan
Program: beauty salon
Architects: Tsubasa Iwahashi Architects
Area: 55 sqm
Completion: 2013
