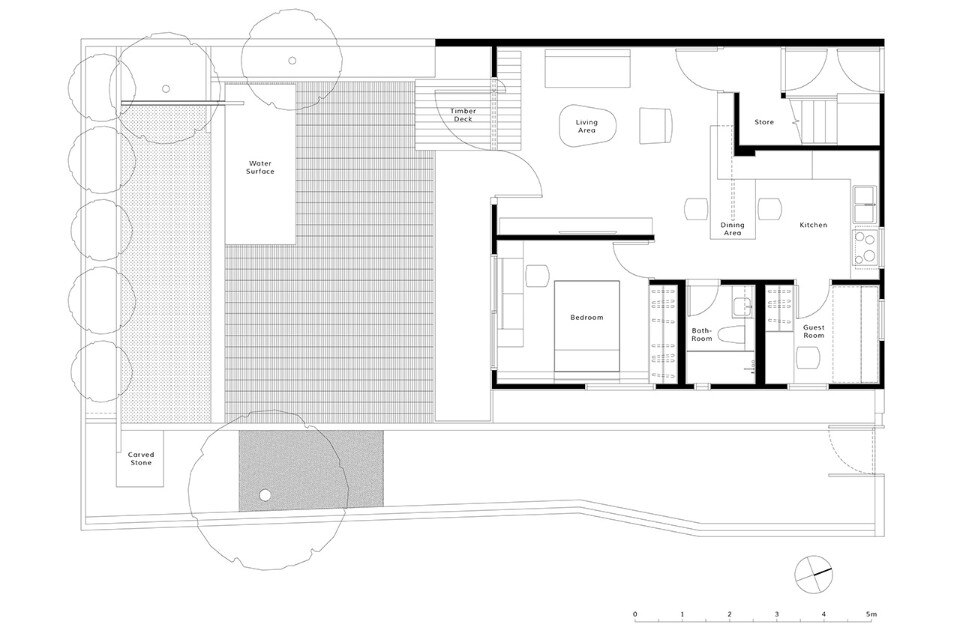
Per mettere in relazione gli elementi e l’aspetto sensoriale sono stati inseriti una pietra scolpita, una superficie d’acqua e una struttura coperta, disposti in modo da creare una serie di esperienze sensoriali che possono essere apprezzate sia dall’interno che da fuori.
Avvicinandosi alla casa, la pietra scolpita che occupa visivamente il punto di fuga prospettico è circondata dal verde e funziona anche come tavolo da tè affacciato verso il mare e il cielo. Un muro di cemento a vista si estende in senso orizzontale dalla pietra all’acqua per formare una visione estesa che può essere apprezzata dal piano in legno. La vegetazione circostante si riflette sulla superficie dell’acqua. Al confine tra la residenza e la terrazza, uno spazio coperto offre un luogo semi-aperto che si collega con la natura, dove si può meditare e ritrovarsi.
Galleria
Village House at Clear Water Bay Garden, Sai Kung, Hong Kong
Tipologia: appartamento
Architetti: Plot Architecture Office
Area: 176 mq
Completamento: 2015
