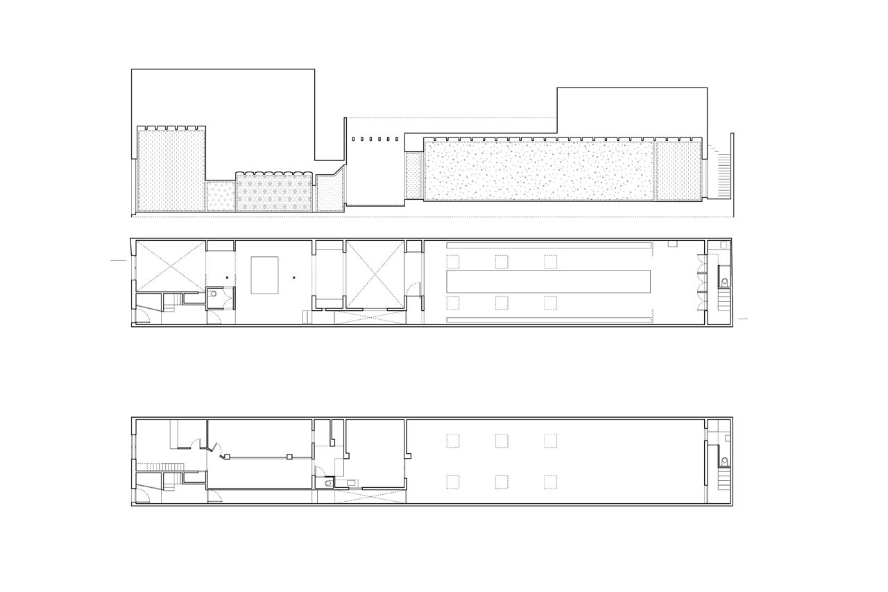
Pertanto, la proposta è focalizzata intorno all’apertura di un patio, concepito come una vera e propria stanza esterna, per migliorare l’illuminazione interna.
Questo spazio divide i 40 metri in due aree. La zona anteriore è aperta sulla strada ed è stata lasciata vuota per ospitare le attività che prevedono la partecipazione del pubblico, come incontri, eventi, mostre, mentre il lato posteriore ospita un lungo tavolo ed è inteso come area di lavoro principale.
Due tavoli sono gli elementi fondamentali del progetto, intorno ai quali si svolgono tutte le attività, e svolgono la funzione di “generatori di comunità”.
Questi tavoli sono stati appositamente progettati per il nuovo spazio e la loro formalizzazione risponde alle diverse attività di entrambe le aree. Nella parte anterioreì, destinata a incontri e dibattiti, sono supporti poco invasivi intorno ai quali si possono disporre le persone. Il tavolo posteriore, lungo 12,5 metri, è stato costruito in un unico pezzo che permette agli utenti di sedersi e condividere il loro lavoro e le loro esperienze.
Il patio è stato progettato come una stanza che permette di lavorare all’esterno, ma anche di svolgere attività che non riguardano direttamente il lavoro, come barbecue o paella, per rafforzare il concetto di comunità e di condivisione delle esperienze.
Le tre grandi finestre aperte sul patio hanno davanzali rpofondi che permettono di utilizzarle come sedute, trasformando le soglie intermedie in spazi abitabili.
Il resto dello spazio è stato semplicemente dipinto di bianco, senza subire sostanziali modifiche in modo da non cancellare un luogo che è ancora presente nella memoria popolare sia del quartiere che dei suoi abitanti.
Galleria
Washing Place, Barcellona
Tipologia: studio di architettura e design
Architetti: Maio (Anna Puigjaner e Guillermo Lopez)
Completamento: 2012
