I muri perimetrali in pietra sono stati puliti manualmente e riparato localmente dove necessario. Allo stesso modo sono stati ripristinati gli architravi in mattoni intorno alle finestre, mentre le aperture originali hanno subito interventi minimi.
Il progetto utilizza soluzioni progettuali e materiali semplici, mantenendo chiaramente identificale ciò che è parte della costruzione originale e ciò che è stato aggiunto.
Fondamentale nello sviluppo del progetto è stata la volontà dell’investitore di preservare questo manufatto, considerato da molti ormai distrutto e senza alcun valore. Inoltre, questo edificio sorge in una zona che oggi è considerata poco interessante per l’assenza di qualità sociali e urbane significative.
Galleria
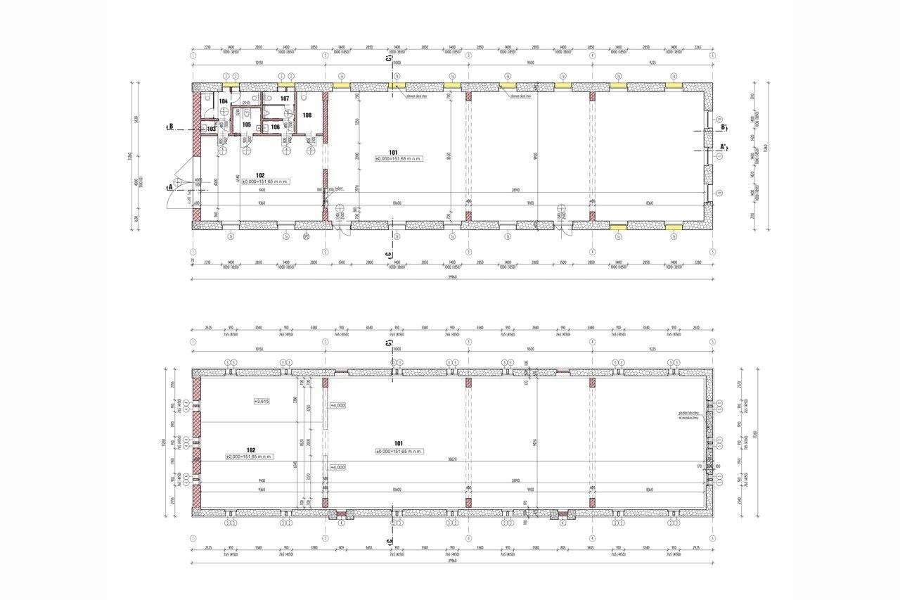
3+1 architekti, Restauro di una scuderia, Předlice, Ústí nad Labem, Repubblica Ceca. Disegni originali
Restauro di una scuderia, Předlice, Ústí nad Labem, Repubblica Ceca
Tipologia: spazio espositivo
Architetti: 3+1 architekti (Plánička, Páral, Panenka)
Collaboratore: Tereza Řeháková
Area: 458 mq
Completamento: 2014
